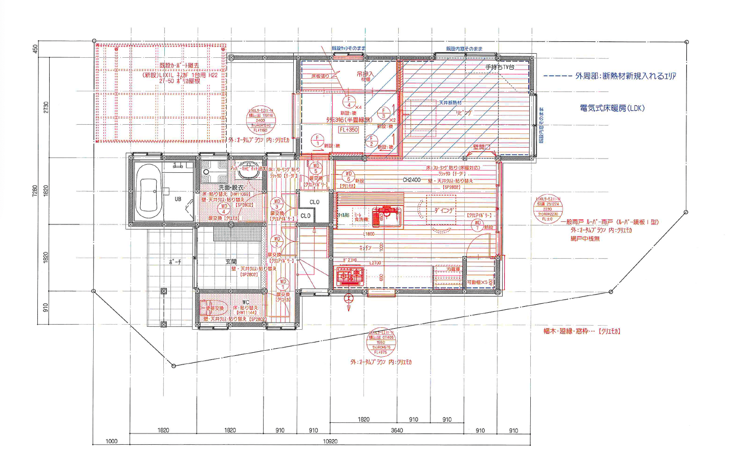
AFTERリノベ後



こだわりポイント
① LDKは家族が自然と集まる“つながる空間”に ・壁を取り払い、キッチンとリビングをひと続きに。 ・料理をしながら家族と会話ができる対面キッチンに変更。 ・南からの光がしっかり入るように窓の位置も工夫しました。 ② 和室は「ほっと一息つける癒しの間」 ・畳の香りと柔らかさにこだわった4.5畳の和室を新設。 ・リビングの隣に配置して、ちょっとした昼寝やお子さんの遊び場にも◎ ・吊り押入れで抜け感と収納力を両立しました。
DATA
愛知戸建てナチュラル
- リノベ箇所
- LDK全体
- 完成時期
- 2023年06月
- 延床面積
- 123平米
- 設計
- コスモホーム株式会社
- 施工面積
- 55平米
- 施工
- コスモホーム株式会社
- 間取り
- 4DK→4LDK以上
- 家族構成
- その他
- 築年数
- 不明
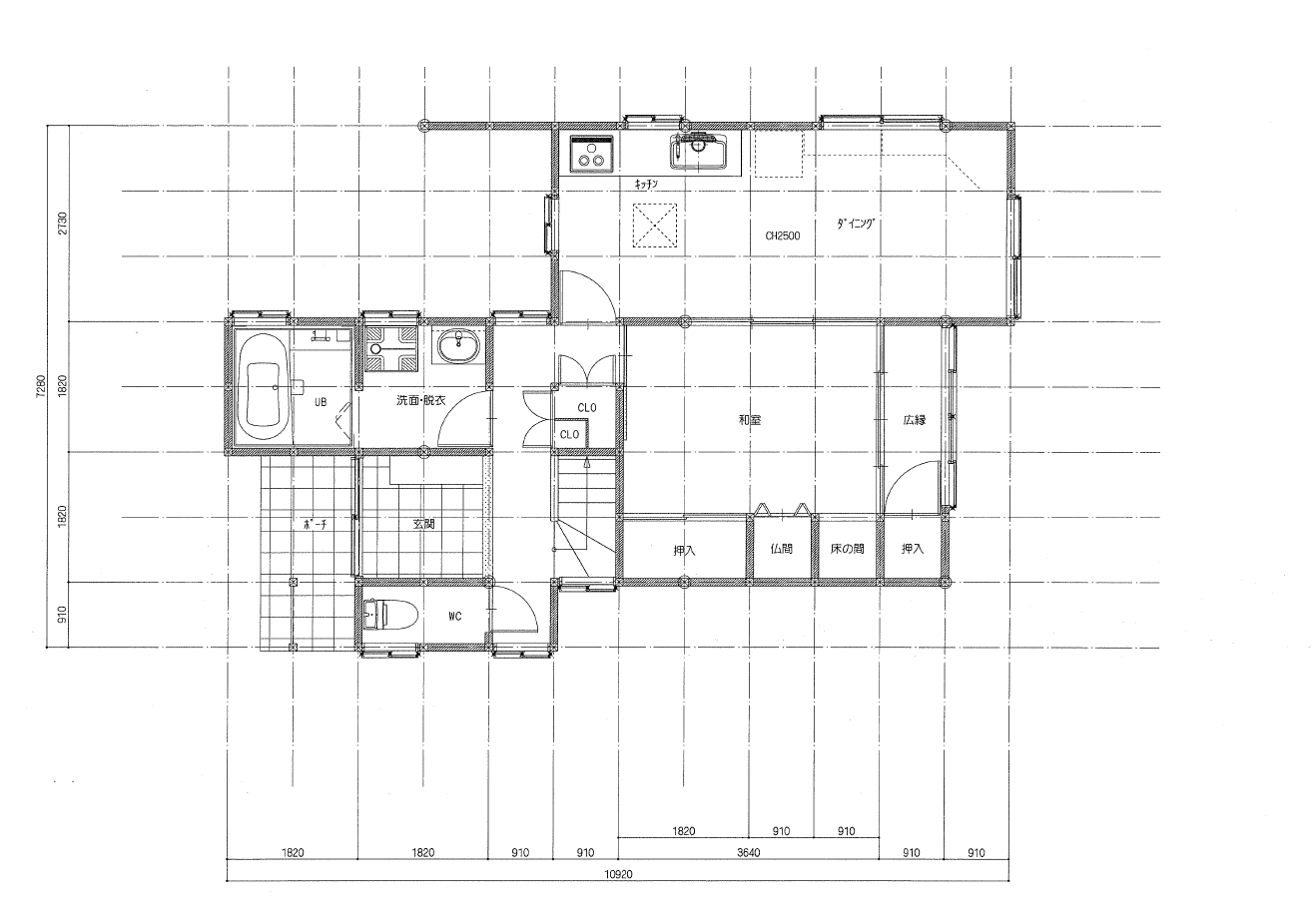
BEFORE

AFTER

リノベの背景
🏡中古を買って、自分たちらしくリノベ 「新築にはない味わい」と「自分たちの暮らしに合った空間」を求めて、中古住宅を購入し、フルリノベーションをしました。 こだわったのは、“使いやすさ”と“暮らしやすさ”。毎日がちょっと楽しくなるような工夫を詰め込みました。








