AFTERリノベ後





BEFOREリノベ前






こだわりポイント
ツーバーフォー構造のため間取り変更が難しい住まいでしたが、 「快適に、心地よく暮らせる空間を」という想いから、構造を活かしながら暮らしの不便を一つひとつ解消しました。 キッチンは北面にあり、日中でも暗く寒い空間でしたが、 段差を解消し、回遊できるバリアフリー設計へとリノベーション。 通路幅をしっかり確保することで、調理や家事の動線もスムーズに。 内装には既存の「木」の質感を大切に、シナベニヤの壁・天井と無垢フローリング(6mm)を採用。 裸足でも温もりを感じられる、やさしい雰囲気のLDKへと生まれ変わりました。 さらに、床下・壁・天井の断熱改修と内窓の設置により、冷え込みを軽減し、一年を通して快適な温度を保てるように。 造作家具は、収納するモノを事前にヒアリングし、シンデレラフィットの仕上がりに。 限られたスペースを無駄なく活かし、見た目にも美しい収納計画を実現しました。 また、洗面所は間仕切りを撤去して開放的な空間へ。 造作洗面台を設け、使いやすさと収納力を両立。 暮らしの中で感じていた“使いづらさ”をデザインと機能の両面から丁寧に解消しました。
DATA
- リノベ箇所
- LDK全体
- 完成時期
- 2025年03月
- 延床面積
- 110.14平米
- 設計
- 株式会社村山製材所
- 施工面積
- 70.39平米
- 施工
- 株式会社村山製材所
- 間取り
- 4LDK以上→4LDK以上
- 家族構成
- 単身
- 築年数
- 30年
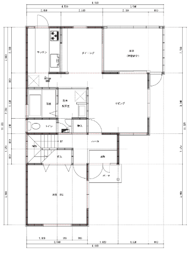
BEFORE

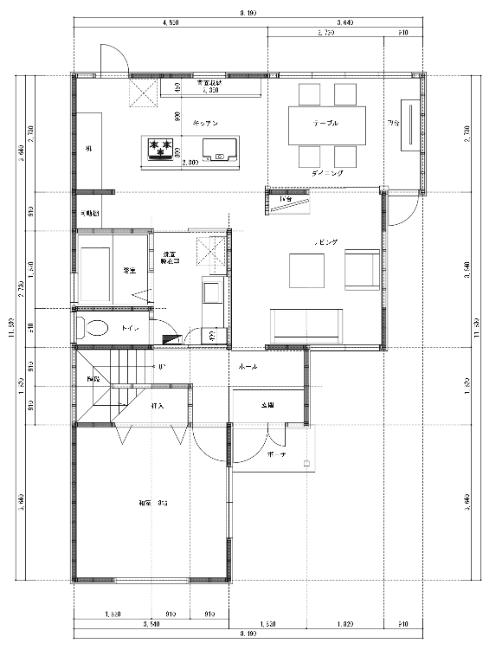
AFTER

リノベの背景
今回のご依頼は、60代の単身女性のお客様から。 「これからの暮らしを安心・快適に過ごせる住まいにしたい」というご希望から、 長年住み慣れたお家を“終の住処”として大規模リノベーションすることになりました。 お住まいはツーバーフォー構造の住宅。 構造上、間取りの変更が難しく、他社では対応を断られるケースも多い建物でした。 お客様も「希望の間取りにできるのか」と不安を抱えておられましたが、 私たちは構造を丁寧に調査し、現状の強度を活かしながら快適な動線を実現できるプランを提案しました。 特にお悩みだったのは、北面にある暗く寒いキッチンと、 ダイニングとの段差や狭い通路による生活動線の不便さ。 私たちは段差を解消し、バリアフリーで回遊できるキッチンレイアウトを採用。 断熱改修(床下・壁・天井・内窓)も行い、冬の底冷えを解消しました。 内装は「木のぬくもりを感じられる空間にしたい」というお客様の想いを受け、 既存の木質空間を活かしながら、シナベニヤの壁・天井と無垢フローリングで統一。 触れるたびに温かみを感じられる、心地よい空間に仕上げました。 さらに、収納や家具はすべて造作で対応。 収納するものを事前にヒアリングし、無駄のない「シンデレラフィット」な設計に。 洗面所も間仕切りを撤去し、造作洗面台で開放的かつ収納力の高い空間へと生まれ変わりました。 構造の制約を超え、お客様の理想と快適さを両立したこのリノベーション。 「木の温もりと機能性が調和した、友人に自慢したくなる空間になった」と 喜びのお言葉をいただきました。
最新情報をお届けします!
お祝い金キャンページ実施中!













