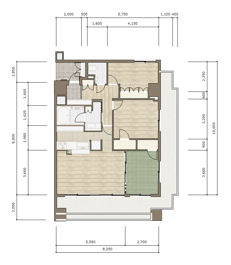
AFTERリノベ後








こだわりポイント
立地は横浜屈指の観光名所にほど近く、建物のエントランスは中央が1階から最上階の11階まで吹き抜けという圧倒的な開放感‥‥そんなロケーションも建物のデザインも魅力に溢れるマンションの一室を、新しく住まわれるご夫婦の〝理想の間取りと装い〟にフルリノベーションしました。 もともとは3LDKだったところ、リビングと個室を区切っていた壁を取り除くことで〝大空間のリビング・ダイニング〟を実現。改修後の個室は主寝室と子ども部屋の2つになりましたが、この子ども部屋はいずれ分割できる計画で設計・施工しています。 またキッチンのレイアウトも以前の配置から変更し、それに伴う「配管の移動」もゆくゆくの不具合とならないようきっちり行っています。 装いは、シンプルながらも無機質過ぎない〝程よい大人っぽさ〟を狙って計画。リビング・ダイニングにはブルックリンタイル、廊下の一角にはアクセントクロスを施し、住まい手の遊び心を感じられる空間に仕上げました。
DATA
- リノベ箇所
- フルリノベーション
- 完成時期
- 2003年02月
- 延床面積
- 87.18平米
- 設計
- 株式会社 I.N.A新建築研究所
- 施工面積
- 83.53平米
- 施工
- 株式会社 紅梅組
- 間取り
- 3LDK→2LDK
- 家族構成
- 家族(子供2人)
- 築年数
- 21年
BEFORE

AFTER

リノベの背景
新居として購入した中古マンションで暮らしはじめる前に、新築当時のままだった古い設備やライフスタイルに合わない間取りを一新することにされたお施主様。当社との出会いは、物件の仲介を請け負っていた不動産会社からの紹介でした。 〝広くてひと続きのリビング・ダイニング〟に加え、〝主寝室や子ども部屋の使いやすさ〟や〝水回り設備へのこだわり〟など「やりたいこと」が明確なお施主様で、打ち合わせもプランの検討・提案もスムーズに進めることができました。 「かっこよくて暮らしやすい住まいになりました」とお引き渡し後も満足いただけているようで、私たちつくり手側としてもうれしい限りです。
最新情報をお届けします!
お祝い金キャンページ実施中!
















