AFTERリノベ後
BEFOREリノベ前
こだわりポイント
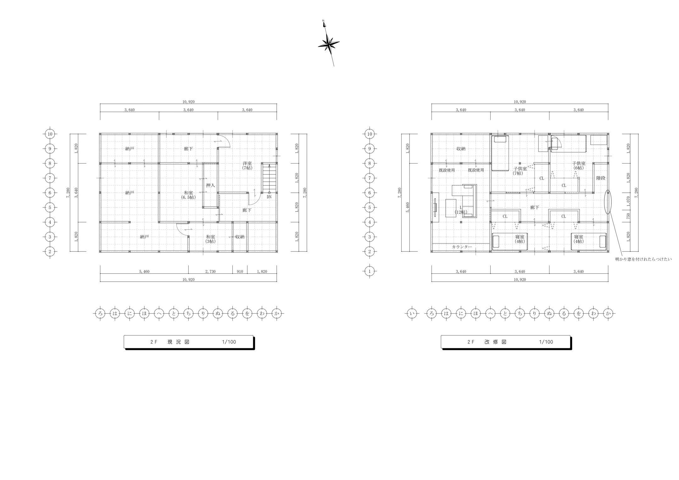
子ども家族が実家に同居することでスタートした今回の古民家リノベ。 1階は家族みんなが快適に使えるように、水回りとLDKをリノベーション。 2階はあまり使われておらず物置となっていたのを、子ども家族の居住エリアにしました。 2階は構造上必要な柱と梁は残した上で、間取りを一新。 リビング、夫婦の寝室、子ども部屋をつくり、子ども世帯の快適な居住空間に。 元々、天井高も低かったので、勾配天井を活用したり、さらに2階リビングは構造材を現しにして、古民家リノベの魅力でもある「元の家と新しい家との融合」を最大限に活かしたつくり。 古民家の思い出と断熱性能も高く使い勝手のいい現在の家づくりが同居する、古民家リノベーションとなりました。
DATA
- リノベ箇所
- リビング/キッチン/浴室・バスルーム/トイレ/洗面所/子供部屋/フルリノベーション
- 完成時期
- 2025年07月
- 延床面積
- 247.87平米
- 設計
- (株)鈴木工務店
- 施工面積
- 129.18平米
- 施工
- (株)鈴木工務店
- 間取り
- 4LDK以上→4LDK以上
- 家族構成
- 家族(子供2人)
- 築年数
- 80年
BEFORE

AFTER

リノベの背景
独立して近くに住んでいた子ども家族が同居するためにはじまったリノベーション。 築80年以上ということで、断熱性能も耐震性能も低かったのですが、建替えるよりもこのお家を残したい、との想いで計画を進めました。 古く使い勝手の悪い水回り、さらに子ども家族が同居するために2階は間取りを一新して、みんなが快適に暮らせるわが家にしたい、との想いから当社にご相談いただきました。
最新情報をお届けします!
お祝い金キャンページ実施中!



