AFTERリノベ後




こだわりポイント
実際にプランやデザインを提案された際は、この家がデザイン画の通りになるとは正直想像できませんでした!と嬉しいお言葉を頂戴しました。 工事完了後に家に入った時の、お客様の驚きと感動の表情は今でも忘れられません。ディセノに任せて良かった!と言っていただけた、私たちにとってもお気に入りの事例です。
DATA
- リノベ箇所
- キッチン/寝室/玄関
- 完成時期
- 2015年03月
- 延床面積
- 30平米
- 設計
- 株式会社ディセノ
- 施工面積
- 70平米
- 施工
- 株式会社ディセノ
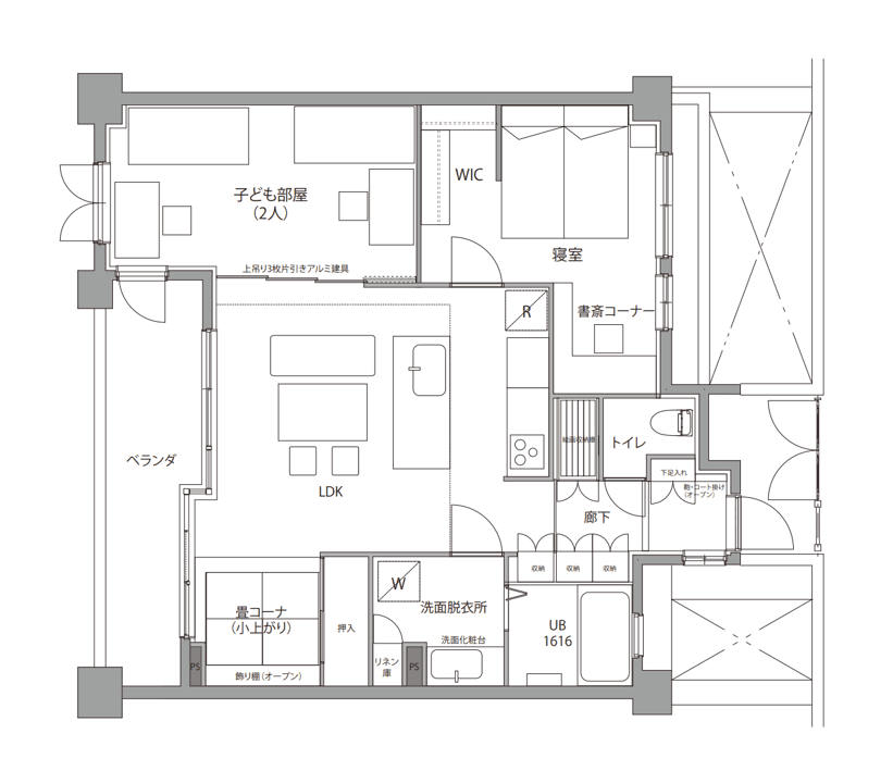
- 間取り
- 3LDK→3LDK
- 家族構成
- 家族(子供2人)
- 築年数
- 1年
BEFORE

AFTER

リノベの背景
子育てもひと段落し、今の暮らしに合わせた居住空間にしたいと考え、最初は展示場やインテリア店を見て回っていたものの、いざ一人であれこれ考えるといまいち想像が形にならなくて悩んでいたそうです。 知人からの紹介でディセノを知り、正直少し業者への相談に抵抗感もあったそうですが、これまでの生活やこれからの生活、理想としている住環境などについて、お話をしているうちにご安心していただきました。
最新情報をお届けします!
お祝い金キャンページ実施中!















