AFTERリノベ後







BEFOREリノベ前



こだわりポイント
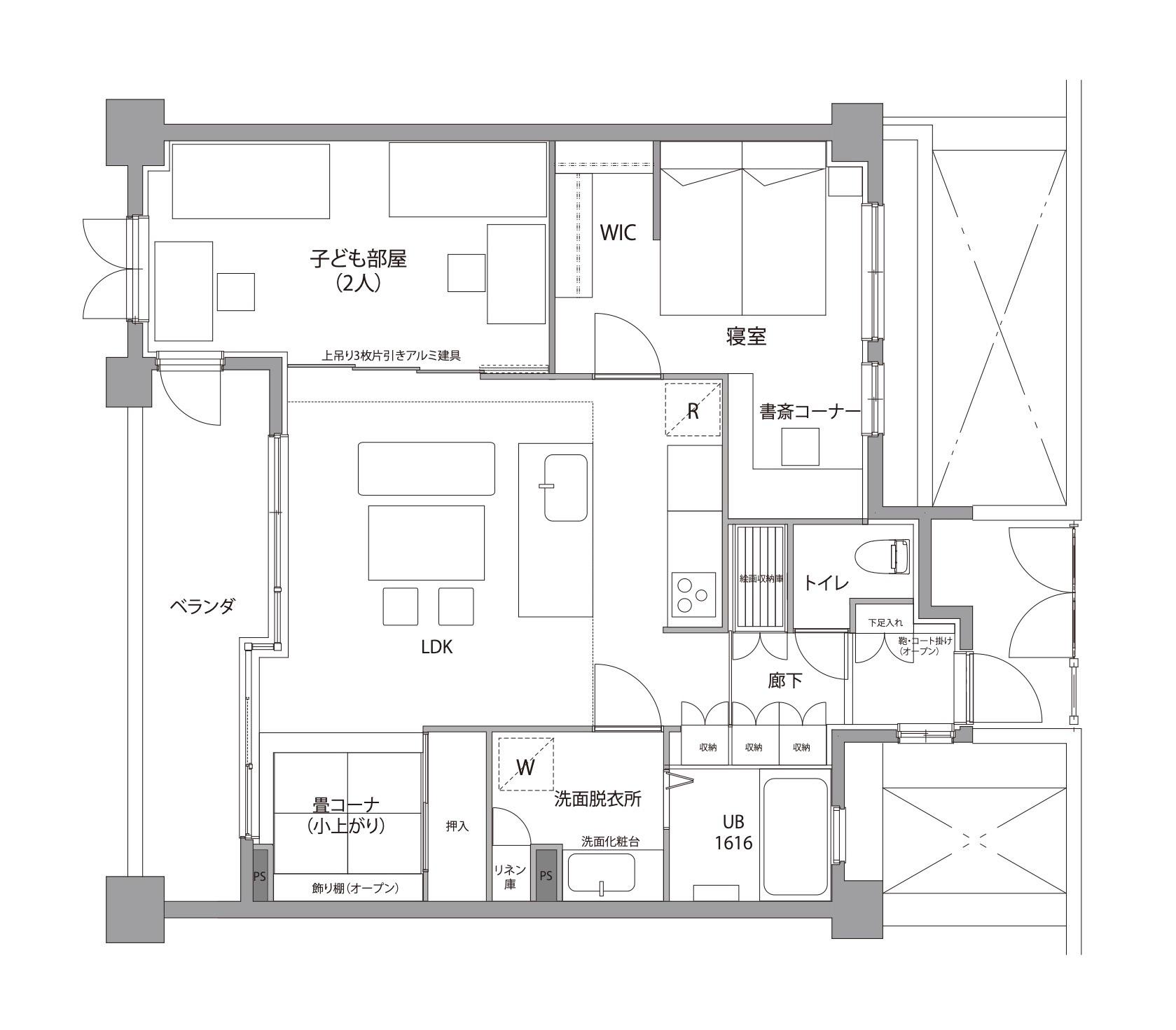
憧れのオープンキッチン 〜家事しながら癒されるワケ!?〜 家の真ん中がみんなの居場所 リビングのドアを開けると眼前に飛び込んでくる、美しい緑の竹林。 ベランダ向きの窓は、ハイサッシでこの景色を見せる為に一面ガラス張りになっている。 「この景色を見ながら、キッチンに立てたら、どんなに癒されるのだろう…」 小さな子供がいる家族の風景をどの様に作るか考えた答えは、 「キッチンが真ん中、家族の団らんも真ん中!」 ダイニングキッチンを中心に、 子供部屋、寝室、書斎とそれぞれの空間に必要最低限度の仕切りをしながら、 空気が一体になる様、家族も一つに纏まる事のできる住まいをご提案させていただきました。
DATA
- リノベ箇所
- フルリノベーション
- 完成時期
- 2018年10月
- 延床面積
- 75平米
- 設計
- 株式会社ディセノ
- 施工面積
- 75平米
- 施工
- 株式会社ディセノ
- 間取り
- 3LDK→2LDK
- 家族構成
- 家族(子供2人)
- 築年数
- 18年
BEFORE

AFTER

リノベの背景
当時、ご夫婦と未就学の幼児2人の4人家族が、 賃貸マンションから新居を求めて中古マンションを探していた所、 このお部屋に一目惚れ! マンションは立地の価値も評価の値になるが、 その部屋から見える景色は、その部屋でしか見れない価値がある。 キッチンを家の中心に設置する事で、 家事をしながらでも家族の気配を感じ、接する事ができる。 洗面脱衣所、ウォークインクローゼットがキッチンと直線上に配置され、 スムーズな家事動線になっているところもポイントの1つ。 子ども部屋とダイニングキッチンとの間仕切りは、 「囲わない子供部屋にしたかった」という母の思いで大きな3枚の引戸になっている。 子供の成長と共に、2つの小さな部屋にもなる様に、 照明やコンセントが設置されている。 小上がりの畳コーナーは、少し特別な場所として、 家族の思い出の写真を飾るオープン棚を作り、 読み聞かせやゴロンと横になれる第二の団らんの場所としている。 旦那様のご趣味であるマンガの所蔵に頭を抱えていた所、 既存の押し入れを撤去後、小さなスペースに寝室付きの書斎コーナーも作ることができました。 「ハレ」と「ケ」の場がそれぞれあり、 家族との関係性にも程よい空気感で、日々の生活を楽しむ住まいとなりました。
最新情報をお届けします!
お祝い金キャンページ実施中!



















