AFTERリノベ後




こだわりポイント
キッチン・浴室・洗面・トイレといった水まわりを中心に一新。清潔感のあるホワイトと木目調を組み合わせ、明るくあたたかみのある空間を実現しました。 床材や建具は落ち着いたトーンで統一し、リビングから廊下・各部屋まで一体感のある仕上がりに。間接照明やスポットライトも取り入れ、暮らしのシーンに合わせた表情を楽しめる空間になっています。収納も随所に確保し、デザインと実用性を両立しました。
DATA
- リノベ箇所
- リビング
- 完成時期
- 2024年06月
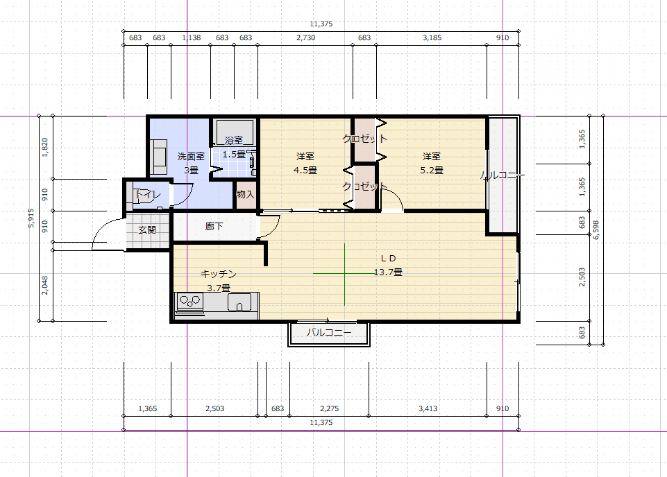
- 延床面積
- 57.28平米
- 設計
- KOJIN HOIME
- 施工面積
- 57.28平米
- 施工
- KOJIN HOIME
- 間取り
- 2LDK
- 家族構成
- 夫婦、カップル(子供なし)
- 築年数
- 44年
BEFORE

AFTER

リノベの背景
築年数を経た住まいを、より快適で心地よい暮らしの拠点へと生まれ変わらせたい――そんな思いから今回のリノベーションがスタートしました。 水まわりの老朽化や収納不足を解消すると同時に、家族が集うリビングを広々と確保。機能性とデザイン性を兼ね備えた設備を導入することで、日々の家事や生活がよりスムーズに。 「新築同様の住み心地を、今の住まいで叶える」ことを目指し、暮らしに寄り添う空間づくりを実現しました。
最新情報をお届けします!
お祝い金キャンページ実施中!













