AFTERリノベ後




こだわりポイント
今回のリノベーションでは、コンパクトな間取りの中に「色と素材の調和」を大切にしました。 シンプルでありながらも、アクセントクロスやネイビーキッチン、木目の天井といったデザイン性をプラスすることで、日常に豊かさを感じられる空間を実現しています
DATA
- リノベ箇所
- フルリノベーション
- 完成時期
- 2024年10月
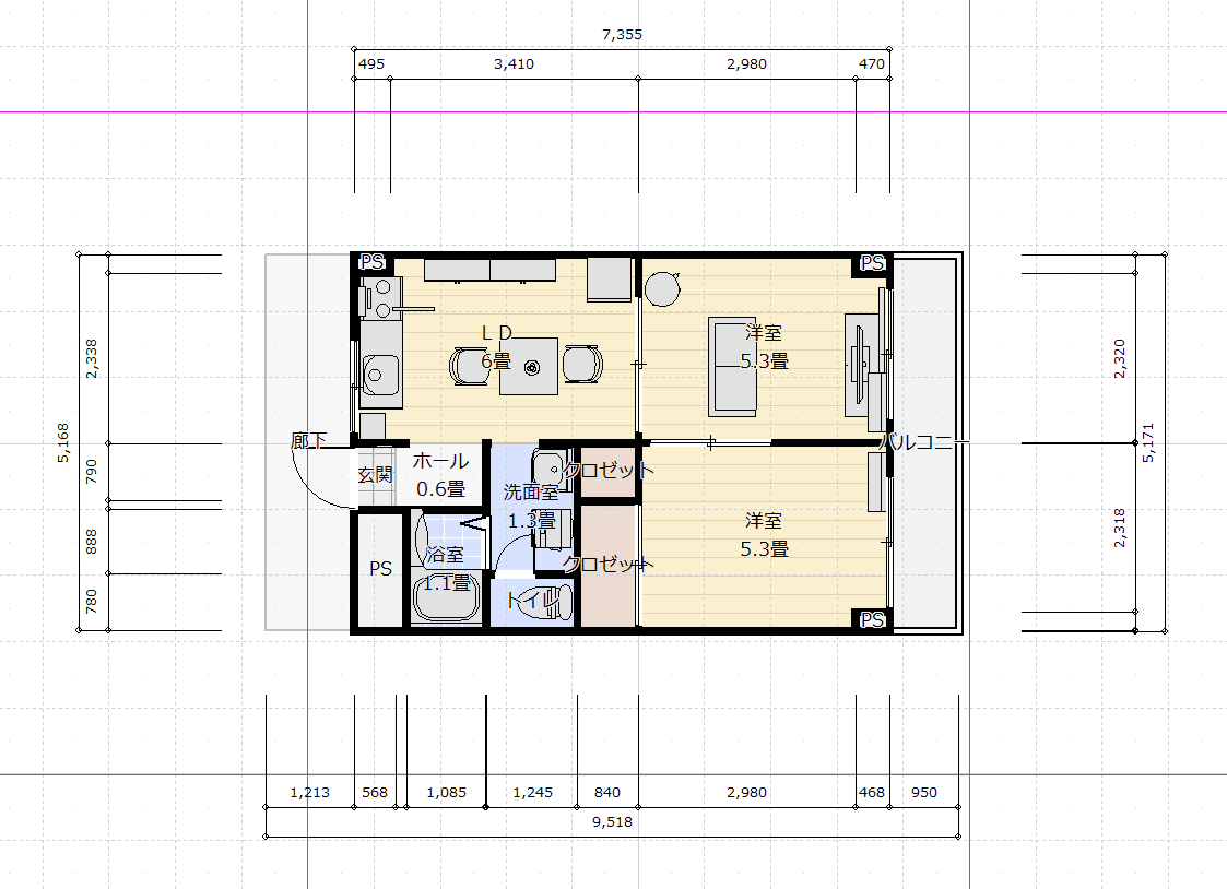
- 延床面積
- 40平米
- 設計
- KOJIN HOME
- 施工面積
- 40平米
- 施工
- KOJIN HOME
- 間取り
- 1LDK
- 家族構成
- 単身
- 築年数
- 31年
BEFORE

AFTER

リノベの背景
限られた空間でもおしゃれで快適に暮らしたい」というお客様の声から始まったリノベーション。機能性とデザインを両立させることで、コンパクトながらも居心地の良い住まいを実現しました。落ち着いた色味をベースに、随所に遊び心を取り入れることで、シンプルながら“自分らしく暮らせる家”へと生まれ変わりました
最新情報をお届けします!
お祝い金キャンページ実施中!













