AFTERリノベ後






こだわりポイント
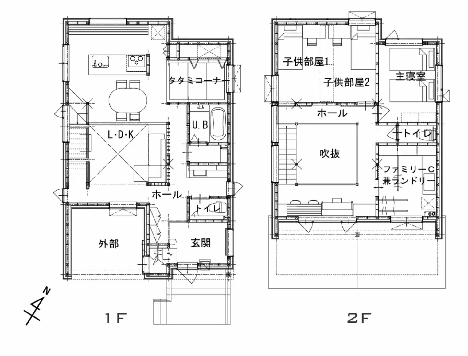
廊下やホールを囲う壁は、抜け感のあるルーバーで施工し、2階吹抜けのまわりにスタディカウンターとピアノコーナー、各個室が配置されているので、家族の顔がいつも見えるリビングとなりました。
DATA
- リノベ箇所
- フルリノベーション
- 完成時期
- 2022年03月
- 延床面積
- 130.27平米
- 設計
- アルティザン建築工房
- 施工面積
- 130.27平米
- 施工
- アルティザン建築工房
- 間取り
- 4LDK以上→3LDK
- 家族構成
- 家族(子供1人)
- 築年数
- 46年
BEFORE

AFTER

リノベの背景
築44年の中古住宅は小さな車スペースが1台分。将来大きな車が必要になった時の為にもう一台分のカースペースの確保することに。生活の中で「家族の気配を感じられる、明るいイエ」をご希望していました。はじめての家づくりは、中古住宅探し、インスペクション(現地調査)からお手伝いをさせていただきました。
最新情報をお届けします!
お祝い金キャンページ実施中!



















