AFTERリノベ後





こだわりポイント
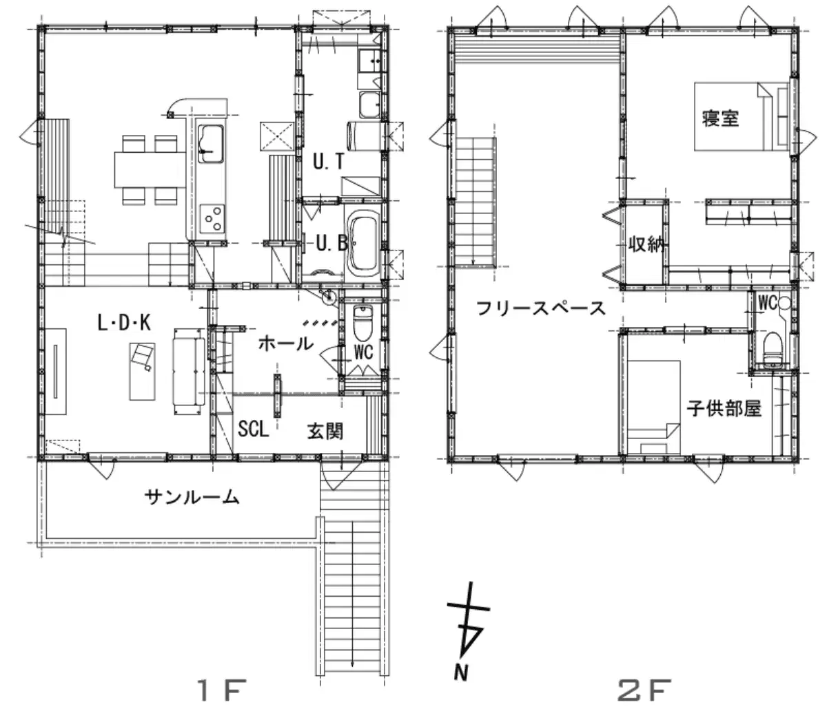
既存のLDKは間仕切りとスキップフロアの影響で閉鎖的な空間となっていた為、間仕切りを取り払い天井の高さを統一することで連続性がありながら、段差を活かした中間領域が音と目線を介してそれぞれを繋ぐよう計画。開口部及び外壁・天井・基礎の断熱も見直し性能向上リノベーションを行った。
DATA
- リノベ箇所
- フルリノベーション
- 完成時期
- 2021年10月
- 延床面積
- 162平米
- 設計
- アルティザン建築工房
- 施工面積
- 162平米
- 施工
- アルティザン建築工房
- 間取り
- 4LDK以上→3LDK
- 家族構成
- 家族(子供1人)
- 築年数
- 32年
BEFORE

AFTER

リノベの背景
札幌市郊外の山合に建つ築31年の中古物件をリノベーション。外壁は乾式タイルで状態が良く、あと数十年の耐候性は充分にあると判断したため、外壁は既存利用とし窓の位置と大きさを変更することなく、大幅な間取り変更と断熱改修を試みた。
最新情報をお届けします!
お祝い金キャンページ実施中!


















