AFTERリノベ後








BEFOREリノベ前
こだわりポイント
こちらは、弊社の新築住宅ブランド『craft(クラフト)』のコンセプトをリノベーションによって実現した住まいです。自然素材を美しく、またさりげなく使い、住むほどに愛着と味わいを深めていく本物の素材・質感で、住まい手ご夫婦のこれからの暮らしとともに“経年美”していく空間を創り上げました。 家族形態の変化から生活が1階で完結できるプランを検討しました。 南北に長く、東側が高台になっている敷地のため、まずは日当たりの良い南側の和室二間をつなげてLDKを配置し、効率的な家事動線としました。そこで使用していた床の間部材や漆塗りの座卓は、状態もよく、ご両親との思い出深い一品だったことから、リビングや玄関のインテリアの一部として再利用しました。 東に面していた仏間は主寝室としました。ネックだった高台からの視線をカットするように開口を絞り、老後も踏まえて布団を敷いてベッドのように使える〝小上がりの就寝スペース〟でホテルのような落ち着きのある空間としました。 craftの持っている洗練された仕上げや質感、開放感に、伝統的な和のテイストがかけ合わさり、唯一無二の空間となりました。
DATA
- リノベ箇所
- 浴室・バスルーム/寝室/トイレ/洗面所/LDK全体/その他
- 完成時期
- 2022年10月
- 延床面積
- 180平米
- 設計
- 株式会社 小林創建
- 施工面積
- 80平米
- 施工
- 株式会社 小林創建
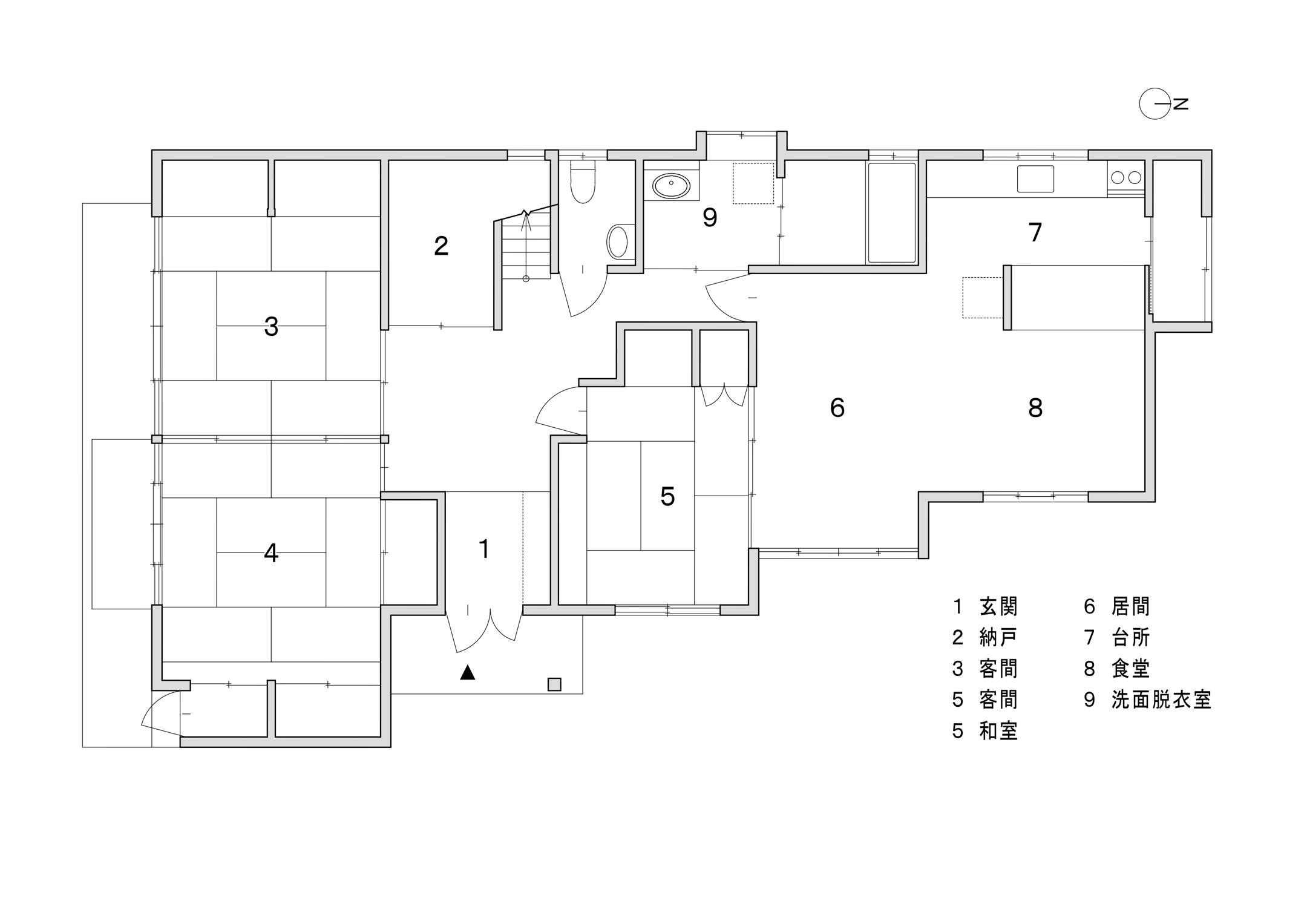
- 間取り
- 4LDK以上→4LDK以上
- 家族構成
- 夫婦、カップル(子供なし)
- 築年数
- 26年
BEFORE

AFTER

リノベの背景
家族構成の変化、世界的な感染症の流行によるテレワークの増加、古くなり交換の必要が生じた設備類の状態から、長年暮らしてきたご自宅をリノベーションされました。知人の紹介で弊社にお声掛けいただき、〝美しい木の家〟というコンセプト、モデルハウスで体感されたcraftの世界観に魅力を感じていただきました。


















