AFTERリノベ後














BEFOREリノベ前


こだわりポイント
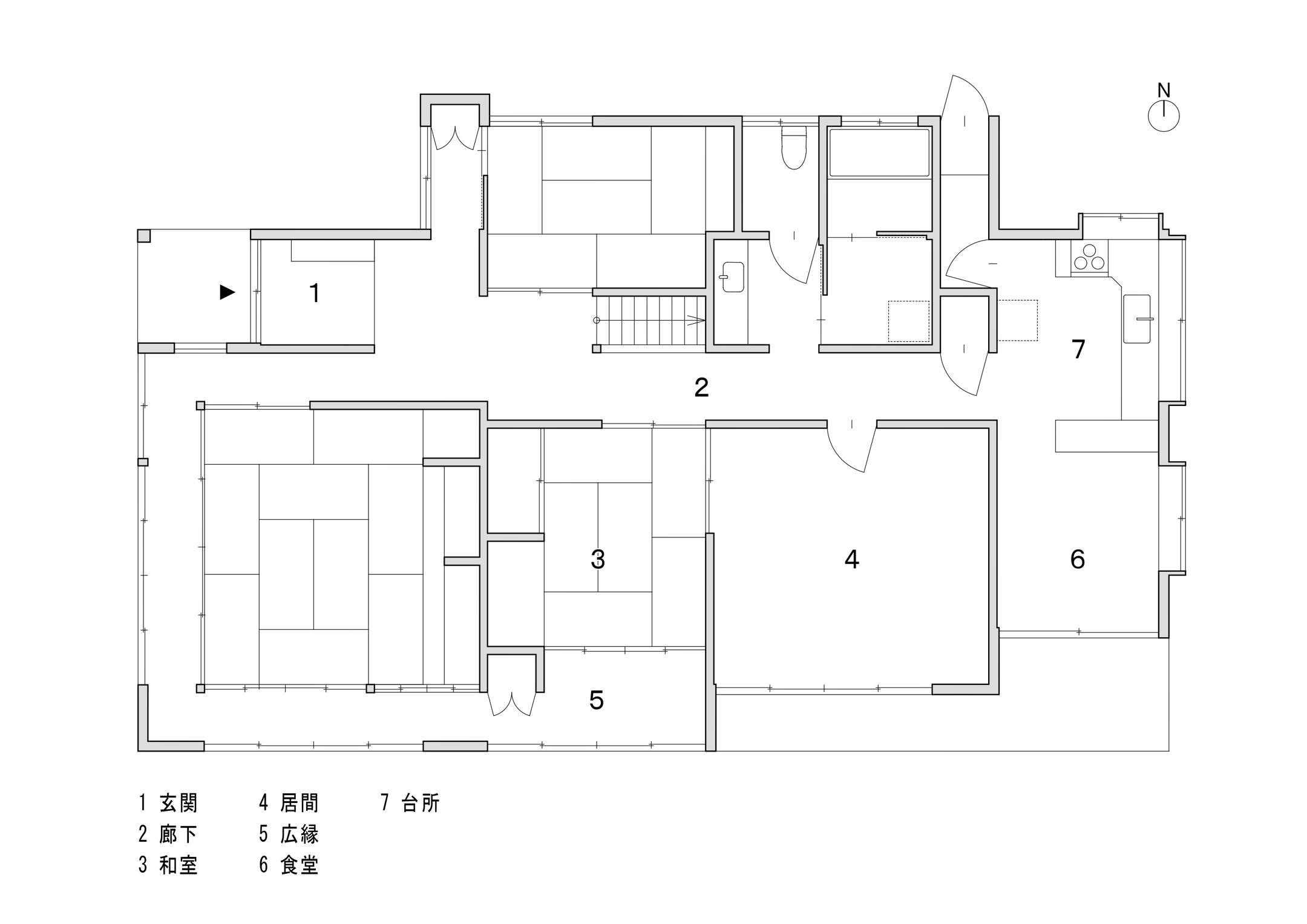
昔ながらの和風の外観を活かしつつ、断熱と家事動線にフォーカスしてリノベーションを行い、居住スペースを広くて明るく暖かい空間に一新しました。北東にあった暗く寒い台所や居間を、LDKの広い空間として南に配置したほか、LDKと繋がる広縁をサンルームに改装し、効率的な家事動線を実現。サンルームは、季節や天候を気にせず洗濯モノを干せるだけでなく、心地よいセカンドリビングや子どものプレイングルームなど、便利に使える多用途な空間となりました。 細部は新築住宅ブランド『craft』のディテールを取り入れ、すっきりとした納まりでシンプルさをベースに、目を引く調湿タイルやカーテンでモダンな雰囲気も演出しています。外観は大きく変えないながらも高断熱の新規サッシや玄関ドアはその色味をそろえて納まりを工夫することで新旧がバランスよく馴染む仕上がりとなりました。
DATA
- リノベ箇所
- キッチン/寝室/廊下/書斎・ホームオフィス/トイレ/階段/LDK全体
- 完成時期
- 2024年09月
- 延床面積
- 188.05平米
- 設計
- 株式会社 小林創建
- 施工面積
- 188.05平米
- 施工
- 株式会社 小林創建
- 間取り
- 4LDK以上→4LDK以上
- 家族構成
- 家族(子供1人)
- 築年数
- 48年
BEFORE

AFTER

リノベの背景
かつてお祖母さまが暮らしていた築50年ほどの立派な日本家屋を、ご結婚されて間もないお孫さんご夫婦が、冬の暖かさと快適さを求めてリノベーションされました。 なお、将来的に賃貸住宅にすることも視野に入れ「こだわりすぎないシンプルさ」を共通認識できたおかげで、短期間でリノベーションが実現しました。
























