AFTERリノベ後








BEFOREリノベ前




こだわりポイント
祖父母の記憶が息づく実家に、現代の暮らしに求められる快適さと洗練された美しさを丁寧に重ね、フルリノベーションを施しました。 松本平を一望する丘陵地という恵まれた立地を活かし、リビングには大開口と、風や光に表情を与える軽やかなカーテンを設計。内と外が自然につながる、開放感のある空間を目指しました。 間取りや内装は、日々の動線と空気の流れを見直しながら再構築。耐震性や断熱性といった基本性能にもバランスよく配慮し、新築に劣らない快適性を実現しています。 また、周辺環境との関係性から窓の形状や配置を繊細に再構成。ほぼ平屋でありながら、風がやさしく巡り、四季の移ろいが室内に穏やかに響く住まいとなりました。 この住まいには、小林創建がこれからもリノベーションで大切にしていきたいアイデアがひとつの形として結実しています。
DATA
- リノベ箇所
- 外装(屋根・外壁)/ベランダ・バルコニー/階段/フルリノベーション
- 完成時期
- 2025年06月
- 延床面積
- 123平米
- 設計
- 株式会社 小林創建
- 施工面積
- 103平米
- 施工
- 株式会社 小林創建
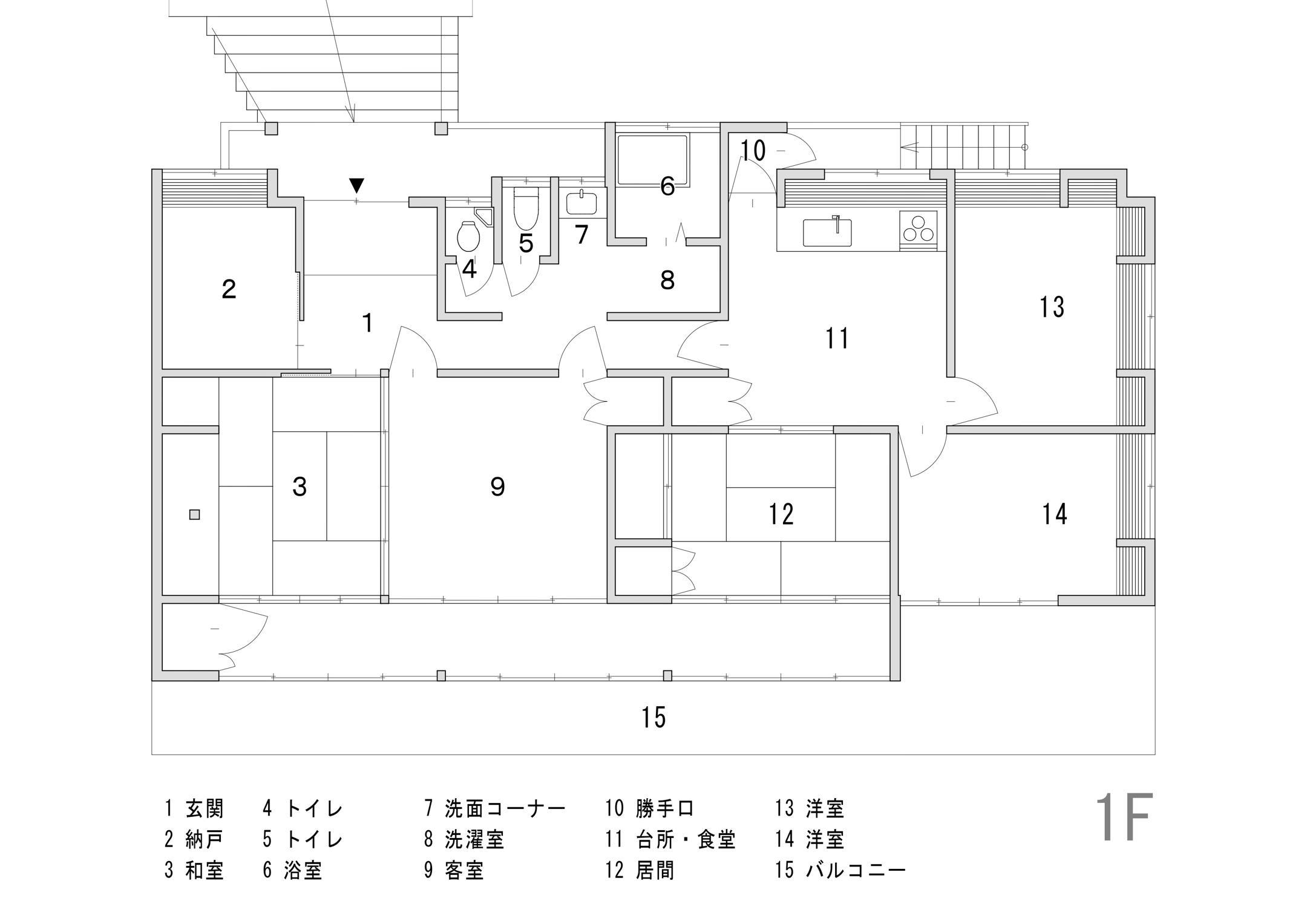
- 間取り
- その他→4LDK以上
- 家族構成
- 家族(子供1人)
- 築年数
- 50年
BEFORE

AFTER

リノベの背景
ご逝去された祖父母が残してくれた高床式の平屋住宅を、お孫さんがフルリノベーションし、増築棟のご両親とともに程よい距離感の二世帯生活を始めました。
















