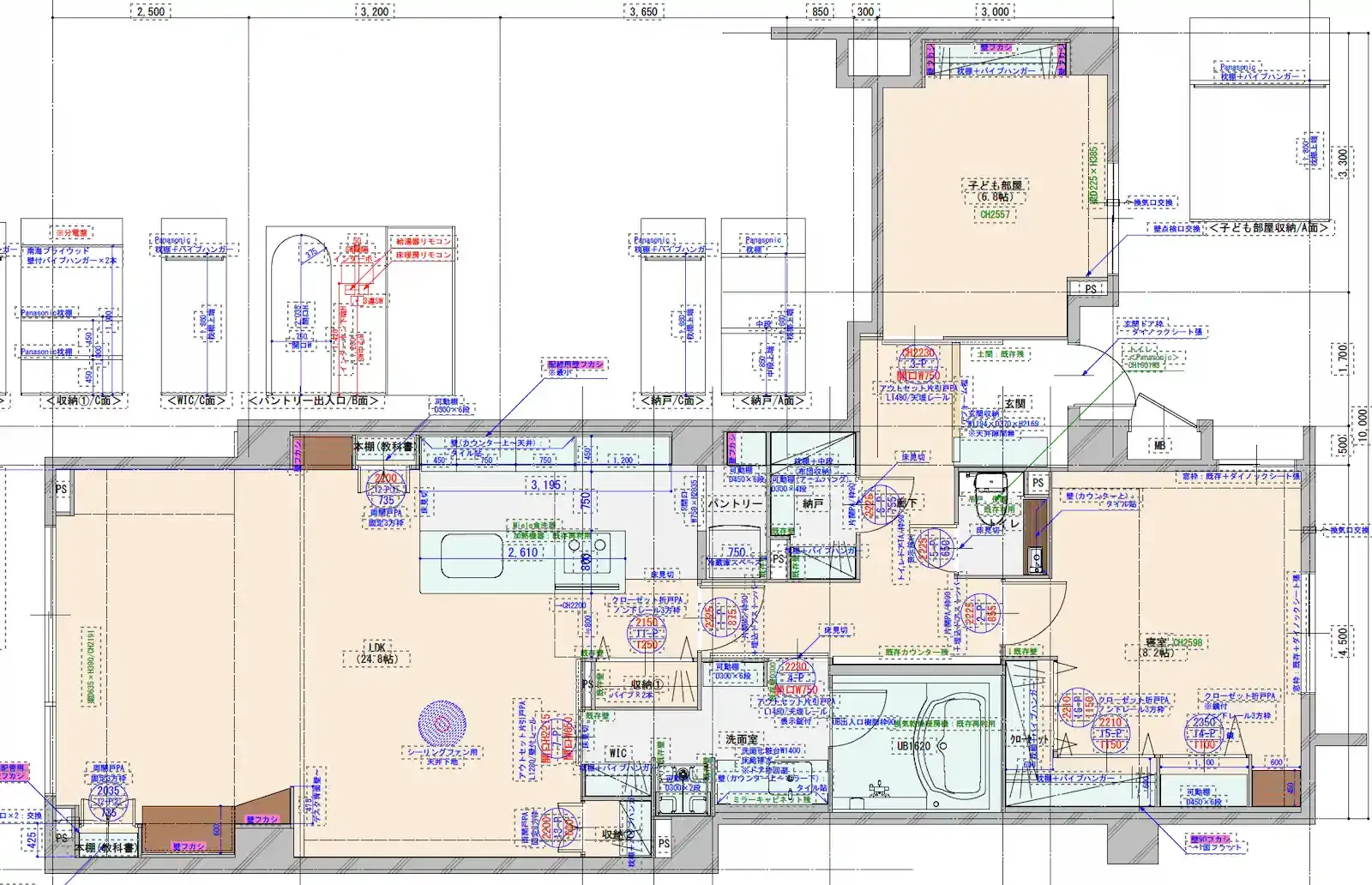
AFTERリノベ後




こだわりポイント
こだわりポイントは数多ありますが、一番特徴的なポイントはアール(曲線)を要所に使い、全体的に丸みを持たせ、柔らかい印象の空間に仕上がっているところです。 キッチンの天板や角、書斎の壁、パントリーの間口、インターフォンモニターのニッチなど、多くの場所で曲面を出し、無機質な素材感でありながらも、柔らかみを表現しているのがこの空間の特徴です。 また、キッチンはこだわりが詰まったポイントでJ型のキッチンでお客様を呼んで、楽しくパーティができる空間にしています。キッチンを囲みながら、みんなで楽しくお食事ができる、そんな空間です。 このようなキッチンは既製品のキッチンではできないので、オーダーメイドで作り、北欧テイストのデザインで製作しています。 壁の素材もこだわりが満載で、漆喰の質感のクロスで仕上げています。またクロスを貼れないところは漆喰の塗りで、ディテールも工務店としてのテクニックでカバーするなど、empatiの持つ技術を体現しています。
DATA
- リノベ箇所
- フルリノベーション
- 完成時期
- 2023年11月
- 延床面積
- 78.12平米
- 設計
- empati株式会社
- 施工面積
- 76平米
- 施工
- empati株式会社
- 間取り
- 3LDK→2LDK
- 家族構成
- 家族(子供1人)
- 築年数
- 40年
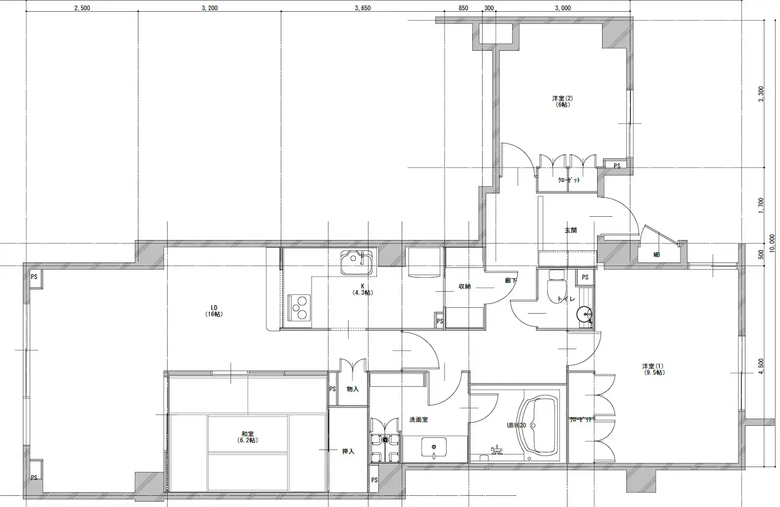
BEFORE

AFTER

リノベの背景
お施主様はWEBマーケーターというお仕事ながら、自邸を構えるにあたって建築を自ら勉強するなどこだわりの強いお客様。3人暮らしご夫婦です。 間取りのこだわりだけでなく、建材・設備やそれぞれのディテールなど、綿密に自分のこだわりを持っていらっしゃいました。 やる気があって、そういうこだわりを持つお客様と一緒に家づくりをしていくことは大好きなので、とても楽しいプロジェクトとなりました。 築40年という古いマンションで、古いマンションだと、配管の関係で床に段差を作らざるを得ないことが多いですが、床全体をフラットにしつつ、天井高を落とさずに広い空間を演出しています。 苦労することも多かったですが、すべての工程をお施主様と楽しく進めることができ、お施主様自身も完成度の高さに大変満足していただいたので、とても良いリノベーションになりました。













