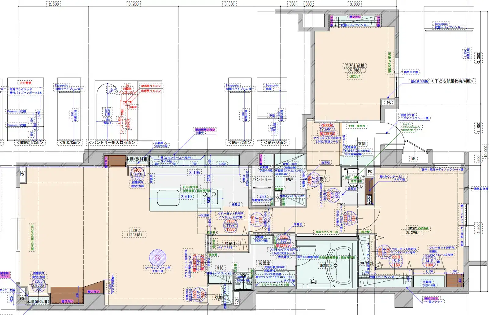
AFTERリノベ後











こだわりポイント
北欧テイストを取り入れた、シンプルでモダンな空間ですが、所々に遊び心を取り入れ、アクセントを効かせています。たとえば、一部の壁に、印象的な色や模様を取り入れています。その中でも統一感が失われないように、色や柄のバランスを丁寧に選びました。 キッチンは、お施主様の希望されたこだわりのキッチンを使っています。重厚感があり、LDKの中心的な存在になっています。このキッチンを中心に、回遊性の高い間取りにしています。 また開放的な空間にするために、様々な工夫を施しました。特に天井の高さを確保するため、できるだけ床の高さを上げないように設計するのが、リノベーションならではの難しさだったと思います。 お施主さまの生活スタイルを配慮しながら、住み心地がよく、デザイン性の高いお家にできるよう、こだわってつくった空間です。
DATA
- リノベ箇所
- フルリノベーション
- 完成時期
- 2023年10月
- 延床面積
- 50平米
- 設計
- empati株式会社
- 施工面積
- 50平米
- 施工
- empati株式会社
- 間取り
- 3LDK→2LDK
- 家族構成
- 家族(子供2人)
- 築年数
- 20年
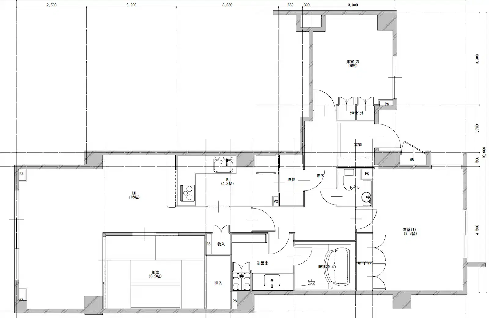
BEFORE

AFTER

リノベの背景
ご夫婦と、お子様2人の4人家族のお住まいで、築20年のマンションでした。 ご主人の体格が良いこともあり、広くて開放的な空間にしたいとのことでした。そこで、広めのLDKをつくり、天井の高さを確保しています。ご主人たっての希望で、リビングにプロペラファンを取り入れています。天井を高くできたからこそ、プロペラファンが映える空間になっています。 奥様はリモートワークをされているということで、リビングにワークスペースを取り入れました。また家事の導線を考慮し、回遊性の高い間取りにすることも、ご要望の一つでした。 全体的にはそれほど難しいリノベーションではありませんでしたが、予算の都合もあり、取捨選択しながら部分的に改修する必要があったのが、少々苦労しました。 お施主様にもとても喜んでいただけて、お互いに満足のいくリノベーションになったと思います。




















