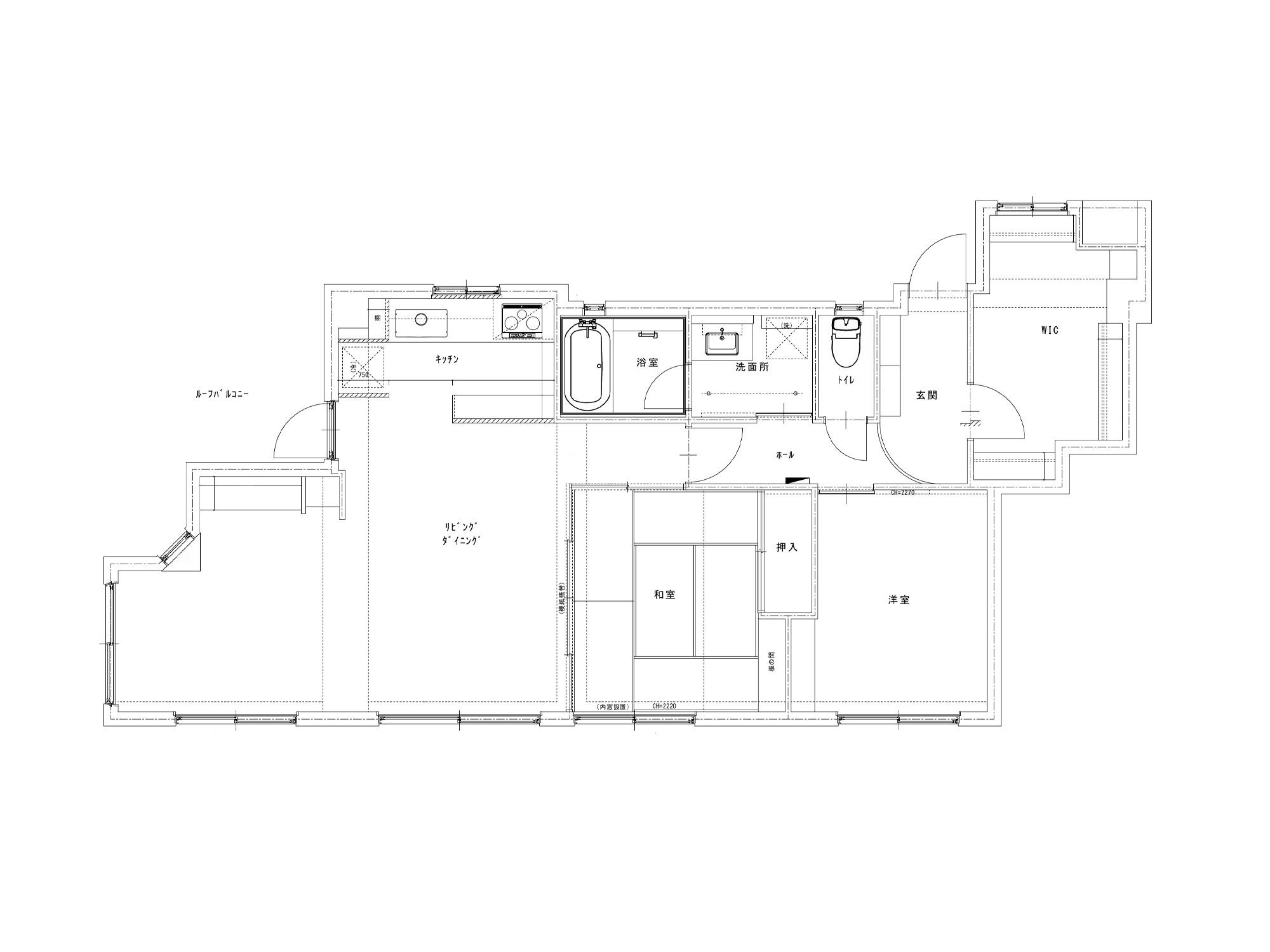
AFTERリノベ後








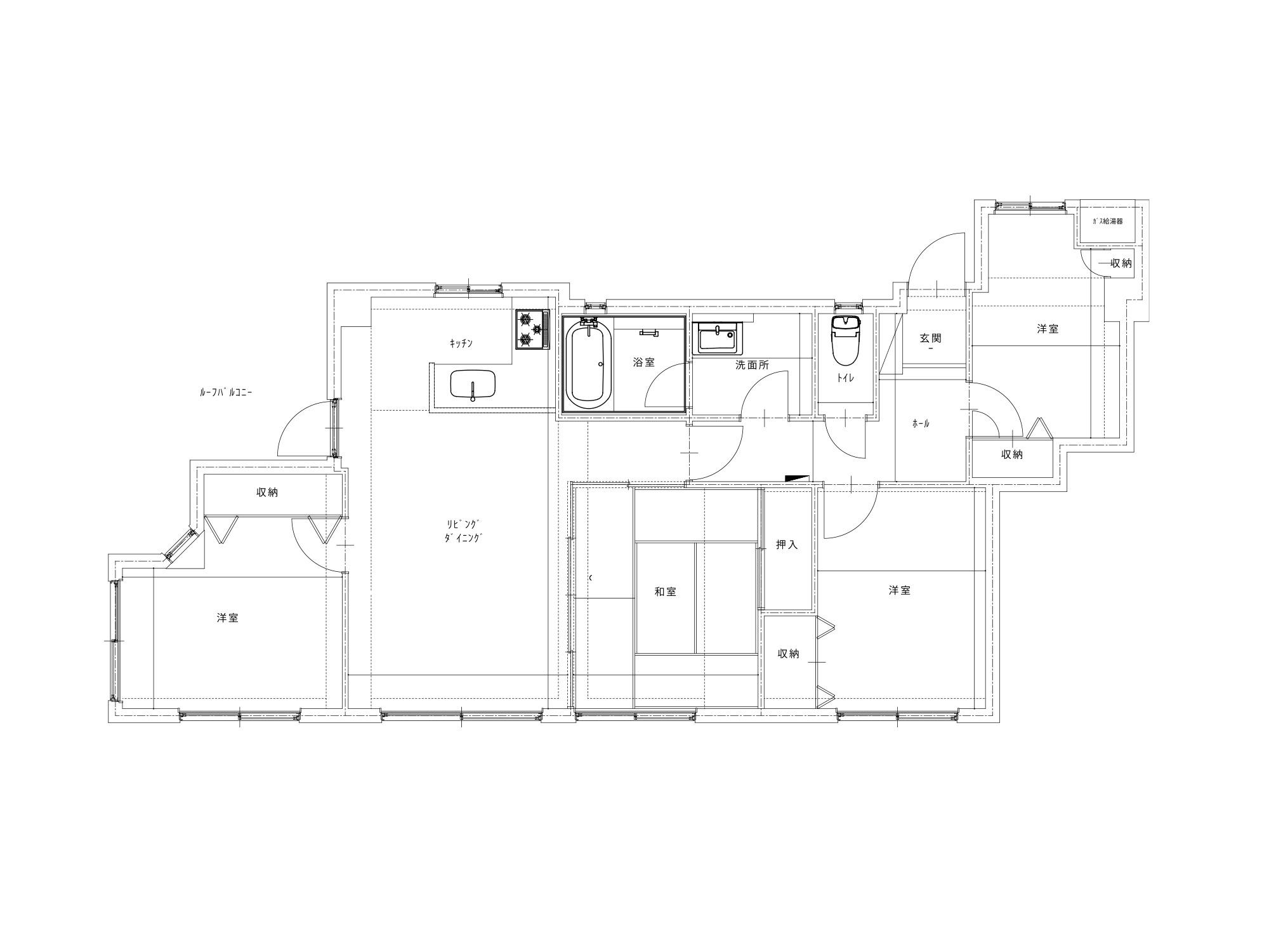
BEFOREリノベ前





こだわりポイント
築30年のマンションを購入しリノベーション。開放的なリビングに、自然な木目と赤みが魅力のラワン素材を使った造作キッチン。ガラスドアや枠材との色も合わせて統一感のある空間になりました。モダンの要素を残した心地よい和室や、旦那様お気に入りのワークスペース。ご夫婦のお好きなインテリアや植物がしっくりはまる個性あふれる、素敵なお家となりました。
DATA
- リノベ箇所
- フルリノベーション
- 完成時期
- 2025年02月
- 延床面積
- 0平米
- 設計
- EUGUE(山﨑建設株式会社)
- 施工面積
- 108.6平米
- 施工
- EUGUE(山﨑建設株式会社)
- 間取り
- 4LDK以上→2LDK
- 家族構成
- 家族(子供1人)
- 築年数
- 30年
BEFORE

AFTER

リノベの背景
息子さまのご結婚を機に住宅を検討される中で、祖父母が残した倉庫を活用できるかをご検討されていました。
紹介動画
最新情報をお届けします!
お祝い金キャンページ実施中!




















