AFTERリノベ後










BEFOREリノベ前




こだわりポイント
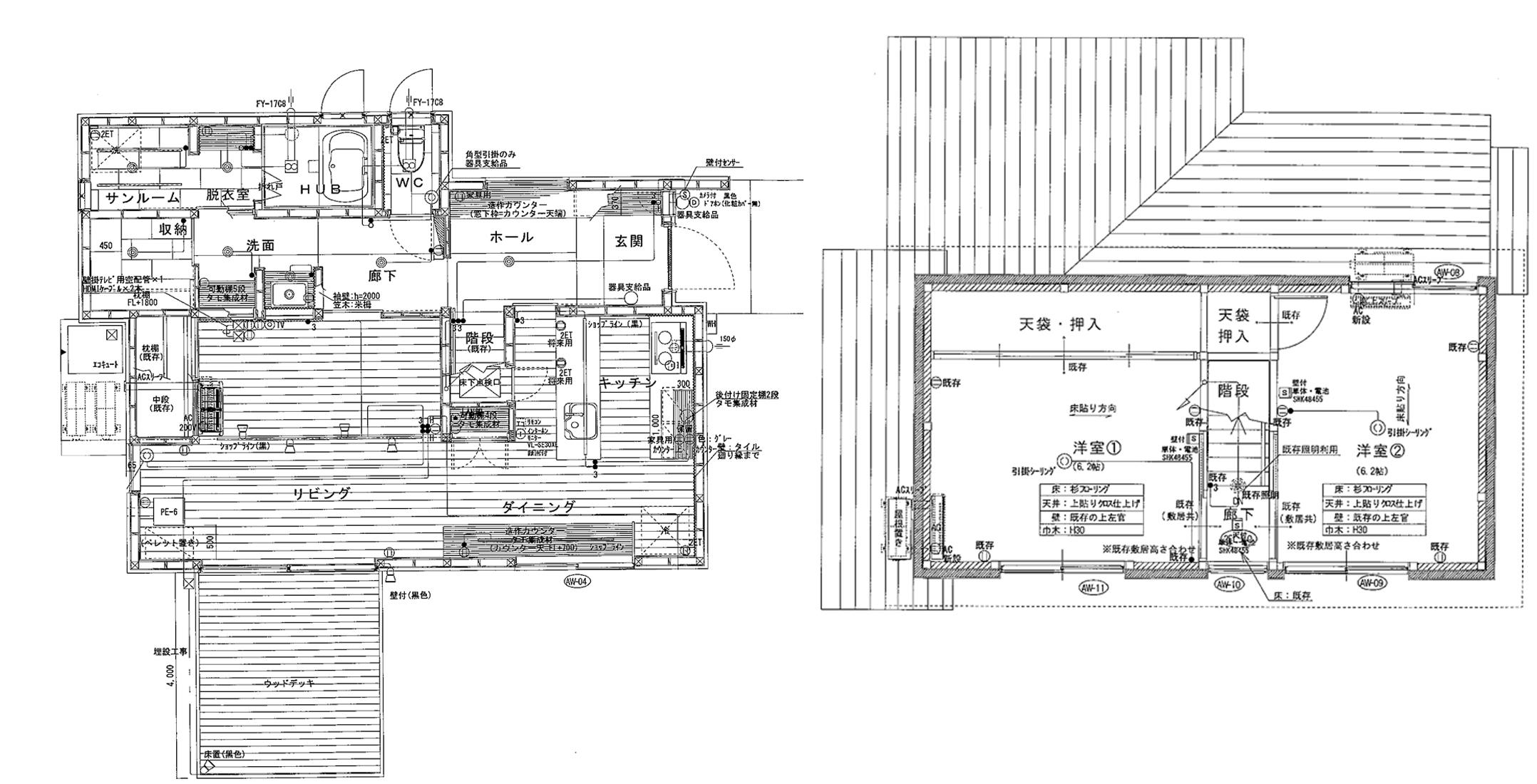
築45年の木造2階建て住宅を外構も含めてフルリノベーションし、『EUGUE RENOVATION』のモデルハウスとして展示・販売していたのがこちらの物件です。 延床面積は23坪ほどのコンパクトな建物ながら、敷地面積は60坪を超えるゆったりサイズ。その広々とした庭を〝居住スペースの延長〟と捉え、大きなウッドデッキをリビングからフラットにつなげることで、「面積以上の開放感」が得られる住まいをつくり出しました。 またLDKの天井板は外して構造材を現しとし、圧迫感をより軽減できるようにしています。 キッチン設備は、意匠性とメンテナンス性を両立できるステンレスで造作。 ダイニングスペースは〝面積の節約〟と割り切った計画で、庭に向かう窓に面してカウンターテーブルを造り付けました。 また洗面スペースと脱衣室は独立させ、増築による〝サンルームとファミリークローゼットの新設〟も実現させています。 外観はベージュ系の塗り壁仕上げで、品が良く印象的な佇まいに。 また外断熱と内断熱の二重断熱で、室内の温熱環境を大きく向上させました。 さらに耐震性についても、耐震等級3に相当するよう補強しています。
DATA
- リノベ箇所
- フルリノベーション
- 完成時期
- 2021年02月
- 延床面積
- 74.21平米
- 設計
- EUGUE(山﨑建設株式会社)
- 施工面積
- 78.69平米
- 施工
- EUGUE(山﨑建設株式会社)
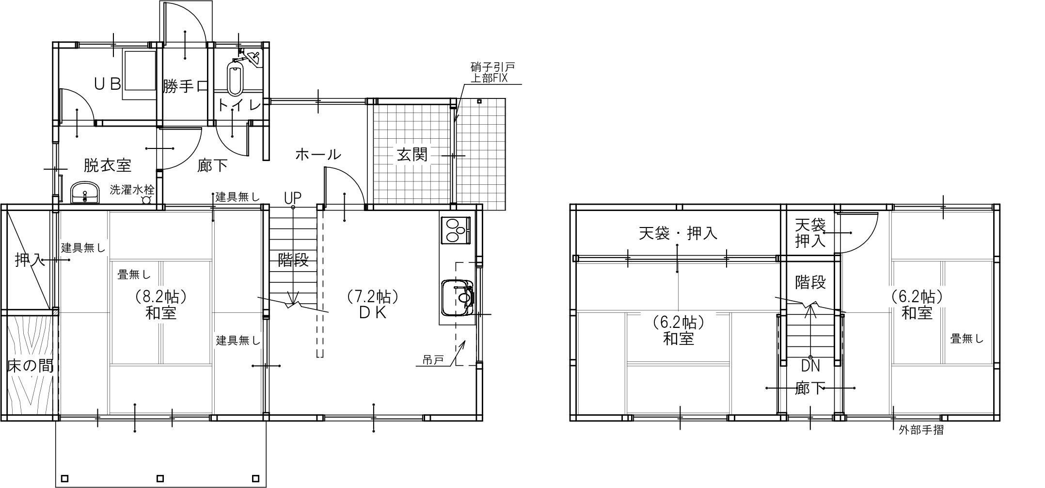
- 間取り
- 3DK→2LDK
- 家族構成
- 夫婦、カップル(子供なし)
- 築年数
- 45年
BEFORE

AFTER

リノベの背景
こちらにお住まいのご夫婦は、もともとは新築の相談で当社を訪ねて来られたお客様です。 しかし、ロケーションや室内の装い・間取りなどもご夫婦の条件と好みにぴったりと合致し、同物件を購入していただくことになりました。 ご夫婦によると「住んでから気づく価値」もあったそうで、当社の〝細かなこだわり〟にも共感していただけたことがとてもうれしく感じています。 また、ご夫婦はこちらで暮らし始めてから〝庭づくり〟への関心が高まったそうで、お引き渡しから1年ほど経った頃に「庭の改修」をご依頼していただきました。 現在は植栽もより充実し、庭の良い眺めに日々癒されているそうです。
紹介動画
最新情報をお届けします!
お祝い金キャンページ実施中!






















