AFTERリノベ後














こだわりポイント
今回のリノベーションでは曲線を用いて上質な空間をつくっていきました。 大きな間取りの変更はなくお施主様にヒアリングしたサイズ感を元に微調整を行っていきました。 微調整により無駄な空間がなく造作家具などを用いて必要な収納量を確保しました。 内装の主軸になったのはリビングドア入ってすぐの曲線の壁です。 これに合わせて造作ドアや造作キッチンキャビネット、造作洗面台のデザインをしていきました。 デザインを統一させることで、コンパクトながらも狭さを感じさせない空間になりました。 床材には細めの、幅70mmナラ無垢フローリングを使用。 節もない良いグレードで選定しているので主張しすぎず上質な空間の土台となっています。 スイッチプレートやレバーハンドル等の細部は真鍮色でまとめています。 玄関に続くリビングドアには大きなガラスを採用。当初暗い印象を受けた玄関スペースですが光が入るようになり明るい印象になりました。
DATA
- リノベ箇所
- リビング/浴室・バスルーム/寝室/玄関/廊下/和室/トイレ/子供部屋/収納・クローゼット/フルリノベーション/ダイニング/LDK全体
- 完成時期
- 2024年09月
- 延床面積
- 46.7平米
- 設計
- アズ建設
- 施工面積
- 46.7平米
- 施工
- アズ建設
- 間取り
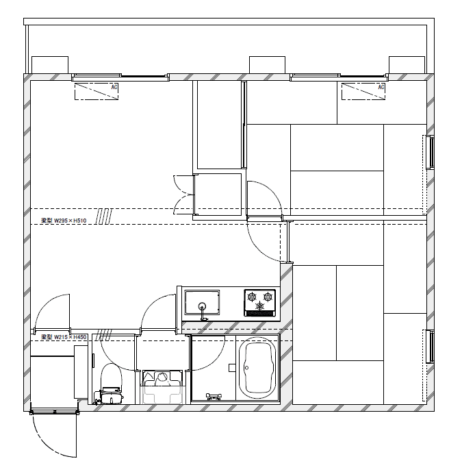
- 2LDK→2LDK
- 家族構成
- 家族(子供1人)
- 築年数
- 43年
BEFORE

AFTER

リノベの背景
お父様から受け継がれたマンションの一室。 当初のイメージは、和室とカーペットの使用感、天井に露出する大きな梁、それらから歴史を感じました。 よくあるマンションの間取りではなく、つくられた当時の背景がうかがえます。 面白いプランが出来るとその時に思いました。 間取りを大きく変えることはありませんでしたが細部にこだわり、お施主様の生活スタイルに合うようにまたコンパクトながらも広く暗さを感じさせない空間をつくっていきました。



























