こだわりポイント
手持ちのヴィンテージ家具が溶け込むようなミッドセンチュリーをテーマとしたこだわりのリノベーションです。 世界三大銘木のひとつ、マホガニーの無垢材をフローリング、建材、家具などに思い切り良く使い、アメリカンモーテルのような、かつ、気品のある空間に仕上げました。 見どころとしては、手狭でありながらも閉鎖感を感じず、リノベーション全体のデザインを凝縮したようなそんなイメージの玄関。 LDKは、マホガニーの無垢フローリングで上品さを出しつつ、天井を躯体現しにすることで丁度いいバランスに調整しました。 キッチン前壁には、音響効果があり音楽ホール等に利用されるコペンハーゲンリブを施すことで間抜けにならず、敢えての異物感を出しています。 その他にも、造作家具に洗面台、輸入建具や漆喰塗りの壁等々こだわりを惜しみなく凝縮。 ただ、それぞれが喧嘩しないように混ぜ合わせています。
DATA
- リノベ箇所
- フルリノベーション
- 完成時期
- 2023年12月
- 延床面積
- 60平米
- 設計
- アズ建設
- 施工面積
- 60平米
- 施工
- アズ建設
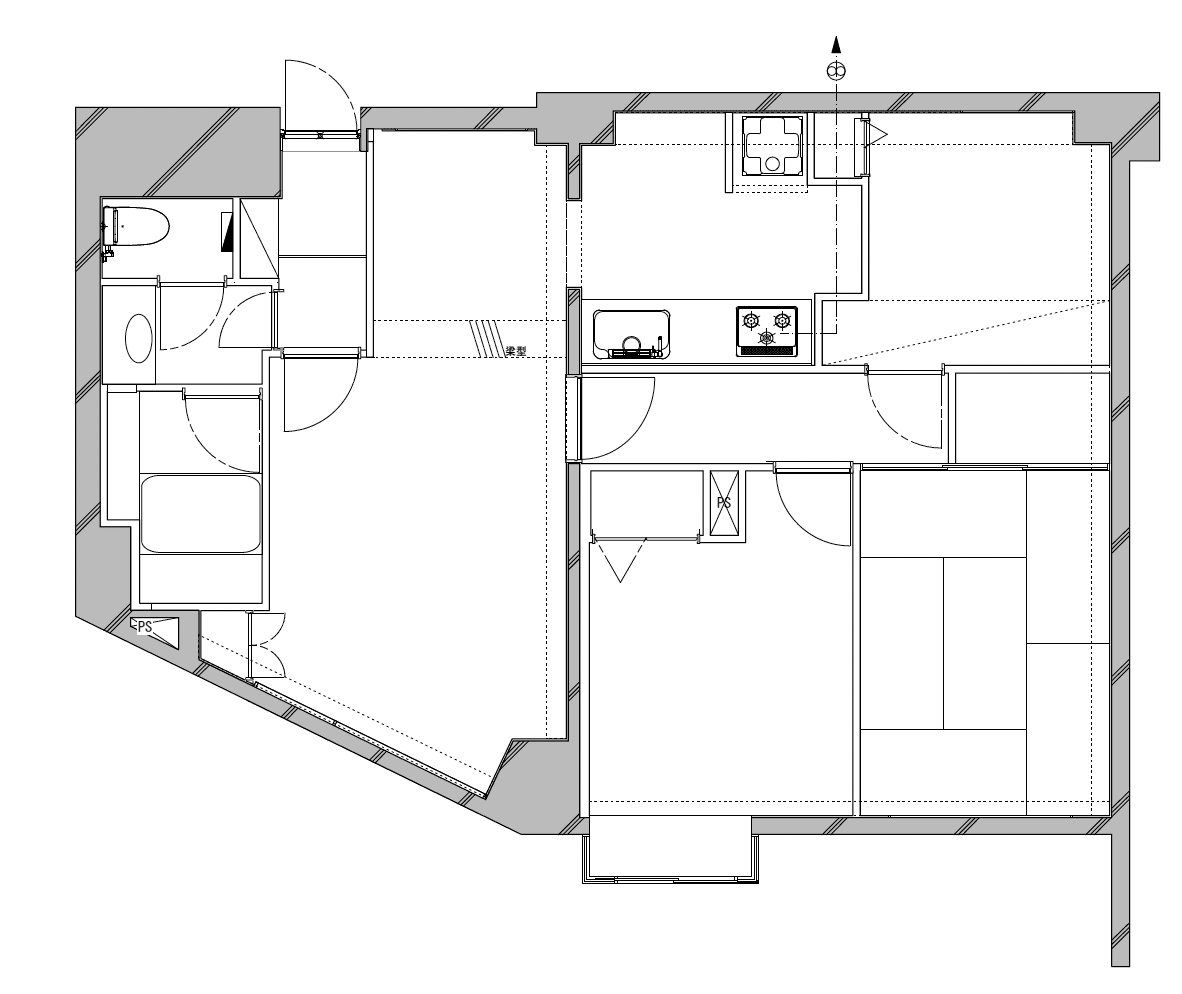
- 間取り
- 3LDK→1LDK
- 家族構成
- 夫婦、カップル(子供なし)
- 築年数
- 37年
BEFORE

AFTER

リノベの背景
元々このお部屋に長くお住まいだったご夫婦。1年以上の打ち合わせを経て完成した物件です。 お打ち合わせ時から何度もご自宅にお邪魔させて頂き、家具や身の回りの物へのこだわりを初回から感じていました。 お話していく中で、好きな物やこと、お施主様の想いと背景を具体化し、仕上げていきました。 ライフスタイルを考慮し、限られた広さの中でストレスフリーな空間を目指しました。 慣れ親しんだ3LDKでの生活を、思い切って1LDKへと変更。 それぞれの場所の広さを確保でき、収納力もリノベ前より確保できました。 いわゆる当たり前を「本当に必要なのか?」と疑問に持ち、引き算的な設計プランになったと思います。 動線としても玄関からキッチンへの直接アクセスができる回遊動線で、普段の生活と来客時の2パターンの人の流れを考慮しています。 引き渡し後は、「アズさんにお任せしてよかった。同じ家とは思えないくらい快適に過ごして、毎日帰宅が楽しみになりました。」とお声を頂きました。 一緒に作り上げたという思いがお互いにあり、非常に良い関係を保ちながら進めることができました。 お引越し後にはお食事にご招待して頂き、生活の様子、インテリアもまさにイメージ通りで、格好良く生活されていらっしゃいました。 こんな使い方をされるかもしれないなど、気付かないだろうと思いつつも、住んだ後に、妥協をしなかった細かい部分のこだわりや細工に気付いてもらえて、とても嬉しかったです。













