AFTERリノベ後













BEFOREリノベ前




こだわりポイント
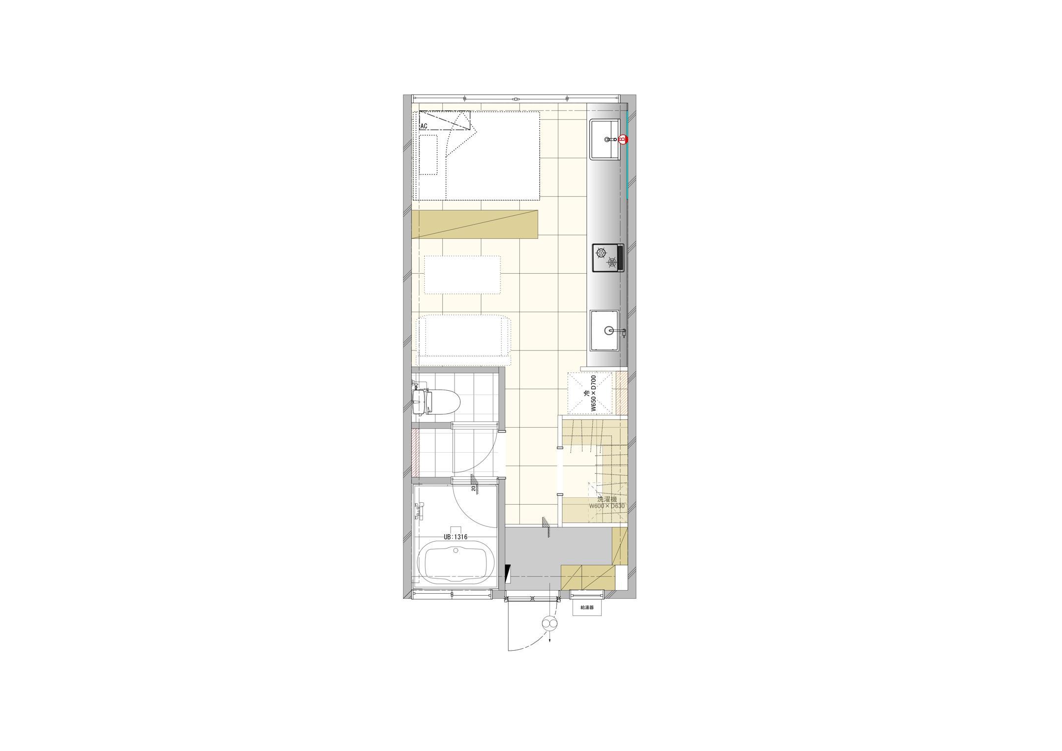
ワンルームの賃貸は、ありきたりな間取りになることが多いです。 今回は壁面の大型キッチンから繋がるHOTEL仕様の洗面カウンターを目玉に設計。 作業スペースも広く取れているため見た目だけではなく使いやすいカウンターになっています。 カウンター下部はオープンスペースになっていて、電子レンジなど調理家電を入れることが出来る大きさになっています。 天井まである造作収納でベッドスペースと生活スペースをわけることで、狭いながらもライフスタイルを構築しやすくしています。 収納とTV台が一体となっていてTVを中心に、小物や鞄などが好きなようにレイアウトでき、ベッド側からも使用できデットスペースを作らず無駄なく利用できます。 女性には嬉しい空間になっているのではないでしょうか。 床にはフロアタイルを採用しています。 清掃性もよく汚れも目立ちにくいので気を使うことがありません。 一癖あるフロアタイルのデザインが壁面のキッチンや造作収納とマッチしています。 天井や一部の壁は、躯体現しにして塗装仕上げに。 ヴィンテージ感もあります。 ターゲットを定めてデザインやレイアウトすることで、 長期間空室状態だった賃貸マンションも気に入って長く住んでいただける入居者が見つけられます。
DATA
- リノベ箇所
- リビング/キッチン/浴室・バスルーム/寝室/玄関/廊下/トイレ/洗面所/収納・クローゼット/フルリノベーション
- 完成時期
- 2024年09月
- 延床面積
- 28平米
- 設計
- アズ建設
- 施工面積
- 28平米
- 施工
- アズ建設
- 間取り
- 1R→1R
- 家族構成
- 単身
- 築年数
- 59年
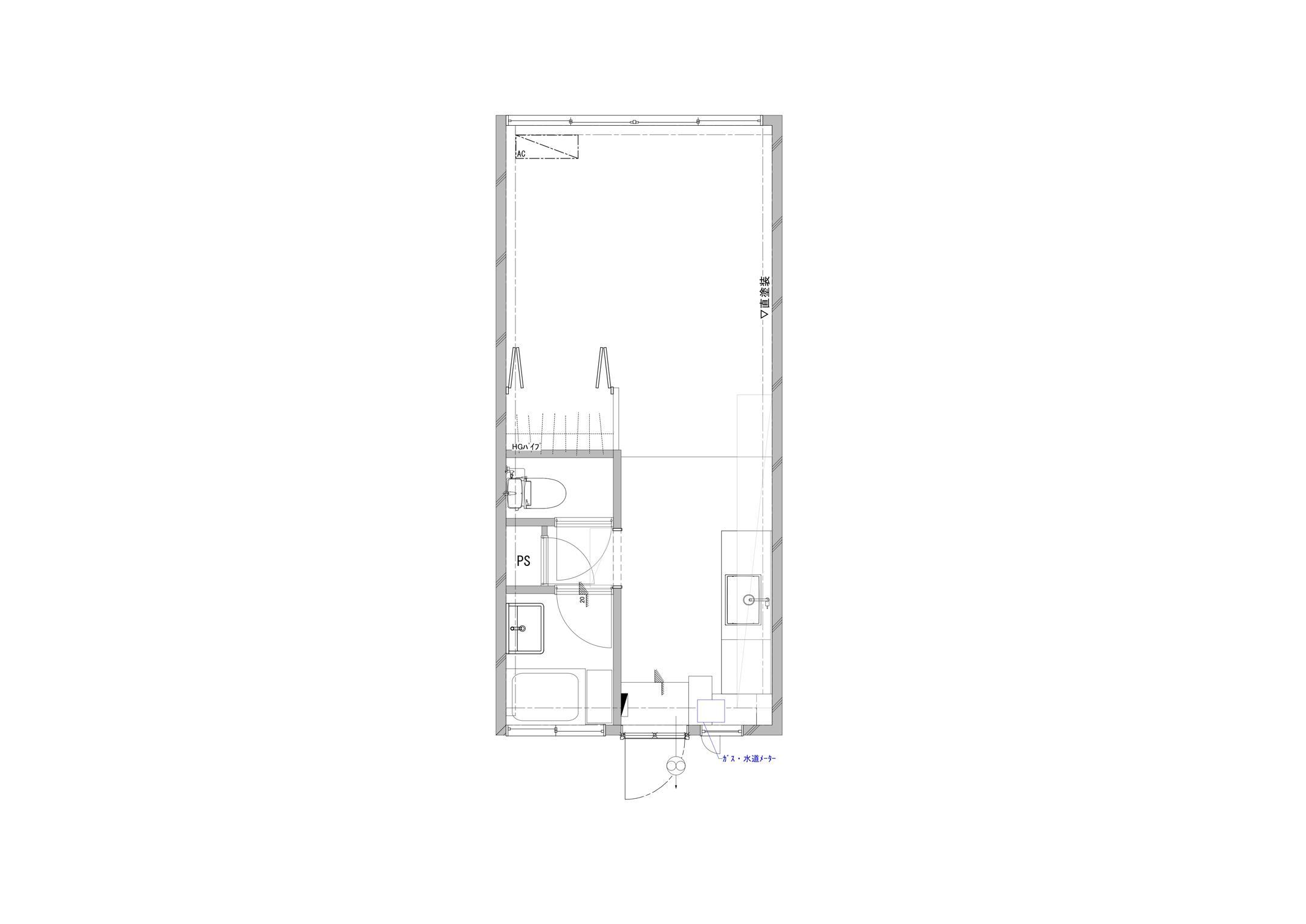
BEFORE

AFTER

リノベの背景
何年も使われてないであろう雰囲気と、埃、臭い、汚れがひどく、いかにも「ボロボロ」といったマンションの一室を賃貸用にリノベーション。 狭小なこともあり使い方が限られている部分もありました。




























