AFTERリノベ後







こだわりポイント
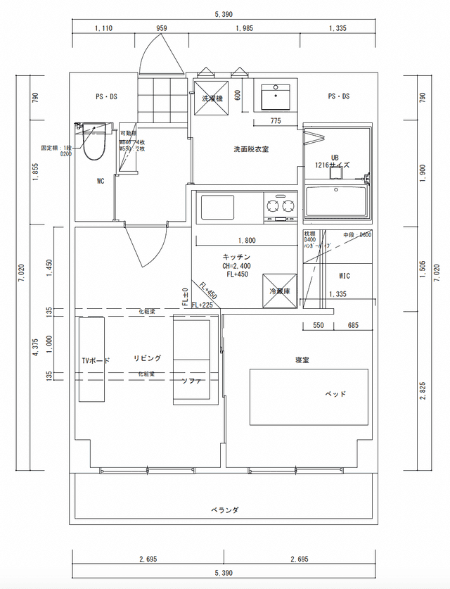
国立大学近くのアパートをリノベーション。不動産管理会社がお施主様であるものの、入室率を上げていきたいという要望から、10代〜20代の学生をターゲットに北欧風のデザインのアパートにリノベーションしました。 1Kだった2部屋を取り壊し、1LDKの部屋に。天井も大きく抜いて、3mを超える天井高にして、広々とした空間にしています。 キッチンをスキップフロアにして立体感を出したり、勾配天井にマンションらしくない化粧梁を設置し、木のぬくもりを表現したり、天井の高さを活かしたデザイン性の高い作りにもしています。 無垢の面材を使用したコンパクトキッチンや北欧風の壁紙など、要所でデザインにこだわったアパートです。
DATA
- リノベ箇所
- フルリノベーション
- 完成時期
- 2022年08月
- 延床面積
- 37.83平米
- 設計
- 岐阜工務店
- 施工面積
- 37.83平米
- 施工
- 岐阜工務店
- 間取り
- 1K→1LDK
- 家族構成
- 単身
- 築年数
- 33年
BEFORE

AFTER

リノベの背景
学生さんが対象の賃貸アパートのリノベーションをさせて頂きました。8Fの最上階1フロア、10部屋あった1Kの部屋を、隣り合う部屋の壁を取り壊し、1フロアを5部屋にしたリノベーションです。 デザインにこだわりのあるお施主様でした。 部屋を壊すなど、解体場所が多かったため、提案時の寸法と解体後の寸法との誤差が生じた点はかなり苦労しました。岐阜工務店の現場力があったからこそ実現できたと思います。 工事中に満室になってしまうなど、かなり人気の学生向けアパートに仕上げることができました。


















