AFTERリノベ後








こだわりポイント
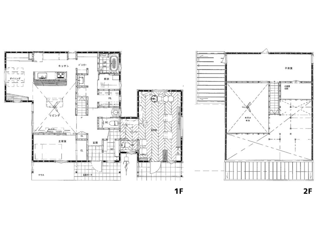
店舗併用住宅でありながら平屋のようにすごせる空間を実現しました。 大きな2つのテーマがありました。 ①「めんどくさがり屋の人間が住みやすい家にしたい!」「全て1Fで家事を済ませたい!」というご要望からスムーズな家事動線を考えました。 キッチン、リビング、ダイニング、パントリー収納、水回りは多方向からアクセスできます! ②店舗併用住宅で難しいことは、お仕事モードの「オン」とゆったり落ち着く家モードの「オフ」の切り替え。 一日中同じ場所にいる感覚があると切り替えが難しくなってしまいます。 既存の間取りをうまく活用することで、空間は緩やかにつながっていながらも分けることができました。 さらに床材の素材を変えることでもさらに効果がありました。 インテリアは木の温もりを感じさせるシンプルナチュラルな空間に仕上げました。 ヘリンボーンの床やセメント系素材「SOLIDO」が空間を彩っています。 カウンターやTVボード収納を一緒に造作することで色味に統一感を感じさせるようにしました。
DATA
- リノベ箇所
- フルリノベーション
- 完成時期
- 2023年05月
- 延床面積
- 121.75平米
- 設計
- GK smile建築設計事務所
- 施工面積
- 134.15平米
- 施工
- 岐阜工務店株式会社
- 間取り
- 4LDK以上→2LDK
- 家族構成
- 家族(子供2人)
- 築年数
- 15年
BEFORE

AFTER

リノベの背景
お子様の成長で部屋が必要になったと同時に、旦那様が自宅でサロンを始めるということになりました。 そして、奥様は賃貸暮らしでの家事動線の悪さや収納のしづらさが限界に! ということで物件探しから始まりました。 無料で随時開催している“知って得する家づくり勉強会”と“土地選び個別相談に参加されたことをきっかけに岐阜工務店でリノベーションを行いました。



















