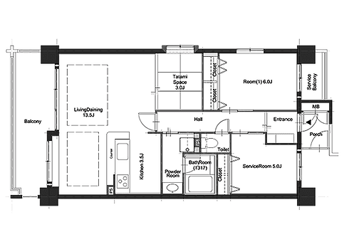
AFTERリノベ後






こだわりポイント
3LDKから2LDKにし畳スペースを造作しお風呂も和を意識したチョイス。また、ゲストとのキッチンカウンターでの食事も意識し、L型カウンターで広く設計しました。なんとなく着物が似合う和モダンで素敵な空間が完成です。
DATA
- リノベ箇所
- フルリノベーション
- 完成時期
- 2024年09月
- 延床面積
- 70平米
- 設計
- ANRI株式会社
- 施工面積
- 70平米
- 施工
- ANRI株式会社
- 間取り
- 3LDK→2LDK
- 家族構成
- その他
- 築年数
- 25年
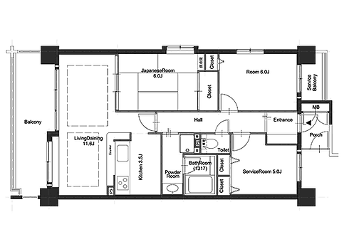
BEFORE

AFTER

リノベの背景
今回のお客様は以前からお付き合いのある法人様。京都というエリアの雰囲気を活かし、ゲストを招いておもてなしが出来る空間がコンセプトでプランニングしました。
最新情報をお届けします!
お祝い金キャンページ実施中!





















