AFTERリノベ後









こだわりポイント
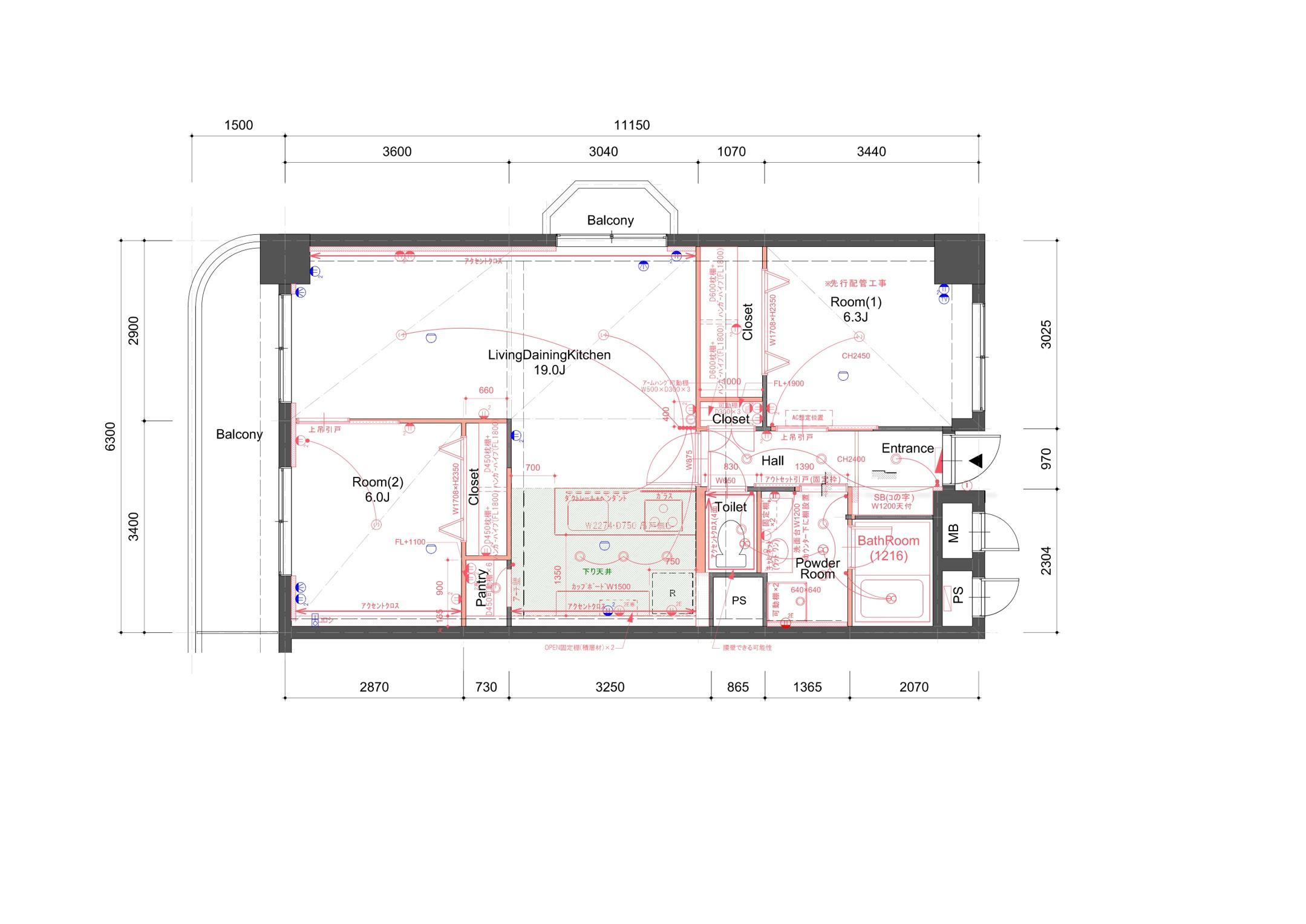
特に水廻りエリアの寸法に制限があり、その中でも窮屈に感じられる事が無い様に最大限空間を取れる様に設計しました。全室エアコンを設置出来る様な計画の他、収納の中までもこだわりを入れ、デザインだけない機能性も考え何度も打ち合わせを重ねました。
DATA
- リノベ箇所
- リビング/キッチン/浴室・バスルーム/寝室/玄関/廊下/トイレ/収納・クローゼット/フルリノベーション/LDK全体
- 完成時期
- 2024年03月
- 延床面積
- 68平米
- 設計
- ANRI株式会社
- 施工面積
- 68平米
- 施工
- ANRI株式会社
- 間取り
- 3LDK→2LDK
- 家族構成
- 家族(子供1人)
- 築年数
- 40年
BEFORE

AFTER

リノベの背景
元々のお住まいでは、狭くはないは無い大きさでしたが、動線も良くなく、窮屈な印象を持たれておられました。小さなお子様が生まれ家族3人となり、お部屋数よりもゆったり過ごせる空間を取りたいという事がコンセプトで、リノベの打ち合わせが開始。色々なショールームへ足を運んで頂き、デザインだけでない使い勝手もきちんと確認して頂き、ストレスが無いお家作りをさせて頂きました。 実は工事の途中で色々問題が発生しましたが、何度も打ち合わせを重ね、とっても素敵なお家が完成し、最後はご家族と私たち全員が笑顔になれるリノベーションでした。
最新情報をお届けします!
お祝い金キャンページ実施中!
























