AFTERリノベ後







こだわりポイント
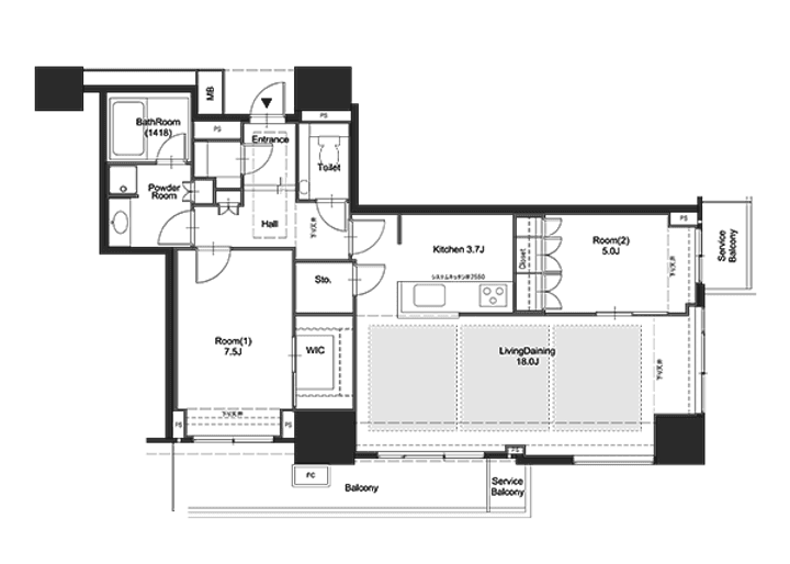
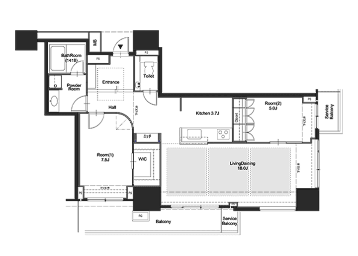
エントランス以外はフローリングのお部屋でしたが、エントランスからキッチンエリアまで新しいタイルへ貼替る事でテイストが大きく変化。 また、折り上げ天井の造作や、前回のお部屋でも採用させて頂いたR壁も取り入れ、タイルとミラーのデザイン貼りをする事でエントランスの雰囲気が抜群にアップ! まるで高級ホテルの様な雰囲気なお部屋の完成となりました。
DATA
- リノベ箇所
- フルリノベーション
- 完成時期
- 2024年08月
- 延床面積
- 82平米
- 設計
- ANRI株式会社
- 施工面積
- 81平米
- 施工
- ANRI株式会社
- 間取り
- 2LDK→2LDK
- 家族構成
- その他
- 築年数
- 不明
BEFORE

AFTER

リノベの背景
今回のリノベーションは、以前にご依頼頂いたお客様から事業用としての依頼を頂きました。海外のお客様を想定したプレミアムな空間創りが今回のコンセプトです。
最新情報をお届けします!
お祝い金キャンページ実施中!






















