










こだわりポイント
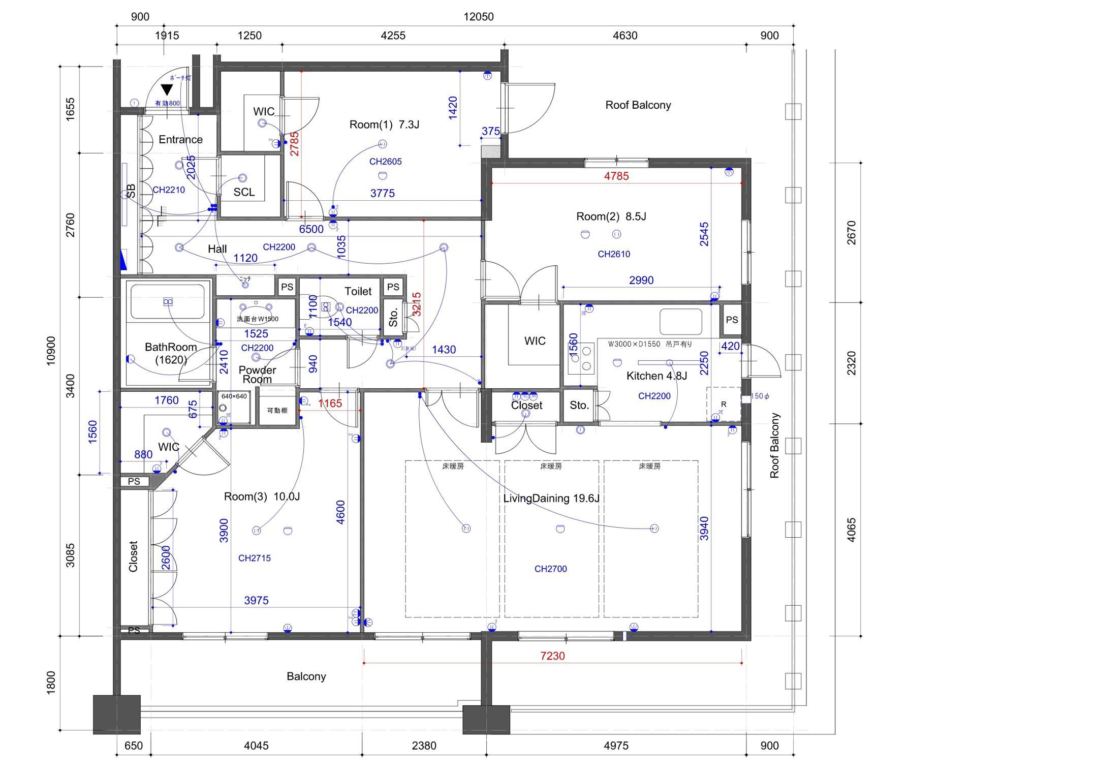
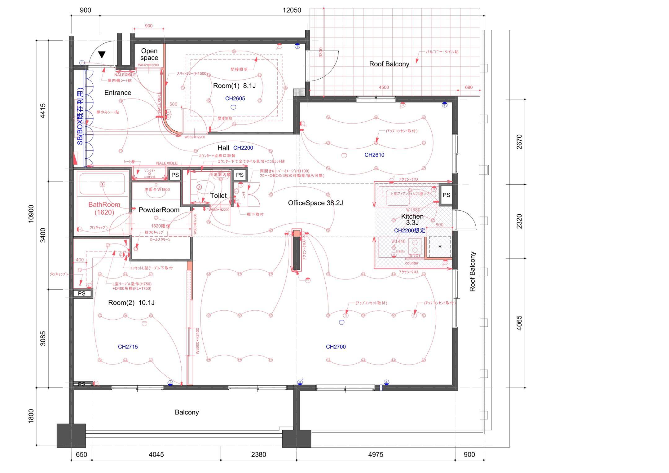
120㎡超えのタワーマンションを贅沢な2LDKへフルリノベーションさせて頂きました。 キッチンは二の字型でオリジナルキッチンを造作し、お料理をしながらでもお部屋全体を見渡せる様に設計。お部屋は間接照明をつくった贅沢な空間と、お仕事が出来るワークスペースを設置した寝室をお創りしました。
DATA
- リノベ箇所
- リビング/キッチン/浴室・バスルーム/玄関/廊下/トイレ/洗面所/ベランダ・バルコニー/収納・クローゼット/フルリノベーション/ダイニング/LDK全体
- 完成時期
- 2024年01月
- 延床面積
- 122平米
- 設計
- ANRI株式会社
- 施工面積
- 122平米
- 施工
- ANRI株式会社
- 間取り
- 3LDK→2LDK
- 家族構成
- 夫婦、カップル(子供なし)
- 築年数
- 19年
BEFORE

AFTER

リノベの背景
ご夫婦で贅沢に過ごせる空間で、ホームパーティーも開ける様なお部屋創りがコンセプトでありました。タワーマンションによくあるラグジュアリーなテイストより、少し落ち着きのあるシャープな意匠にした点もこだわりポイントです。最上階で大きなバルコニーがあり、そちらも素敵なカフェタイムをお過ごし頂ける様にタイルを設置させて頂きました。夏になると有名な花火が見れる特別なお部屋で、そのイベントには私たちも是非お邪魔させて頂きたいです☺
最新情報をお届けします!
お祝い金キャンページ実施中!


























