AFTERリノベ後







こだわりポイント
「再生×和×洋」をコンセプトに、各所へ遊び心を取り入れたワクワクする空間へと生まれ変わる事が出来ました。
DATA
- リノベ箇所
- フルリノベーション
- 完成時期
- 2024年06月
- 延床面積
- 70平米
- 設計
- ANRI株式会社
- 施工面積
- 69平米
- 施工
- ANRI株式会社
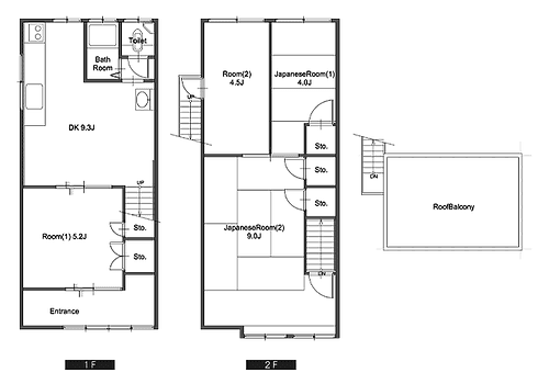
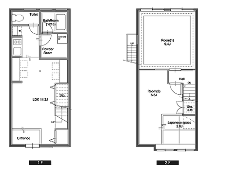
- 間取り
- 3LDK→2LDK
- 家族構成
- その他
- 築年数
- 不明
BEFORE

AFTER

リノベの背景
初めて訪問させて頂いた際は、「これは本当にリノベーションできるのだろうか?」と驚くぐらい建物全体が傷んでしまってました。 こちらのお家は外壁のみ残して、各所を補強しながら中にもう一つお家を作り直すといった大規模リノベーションを計画し工事開始。 工事中何度も計画変更や色々な問題がありましたが、お客様も一緒に何度も打ち合わせにお付き合い頂き、満足いただける完成までたどり着きました。
最新情報をお届けします!
お祝い金キャンページ実施中!






















