AFTERリノベ後








こだわりポイント
木のぬくもりを感じられる遊び心のあるお家創りがコンセプトであり、1階LDKの空間にデザインした格子・オープン階段がこだわりのポイントです☺
DATA
- リノベ箇所
- リビング/キッチン/浴室・バスルーム/寝室/トイレ/洗面所/外装(屋根・外壁)/フルリノベーション
- 完成時期
- 2024年09月
- 延床面積
- 98平米
- 設計
- ANRI株式会社
- 施工面積
- 98平米
- 施工
- ANRI株式会社
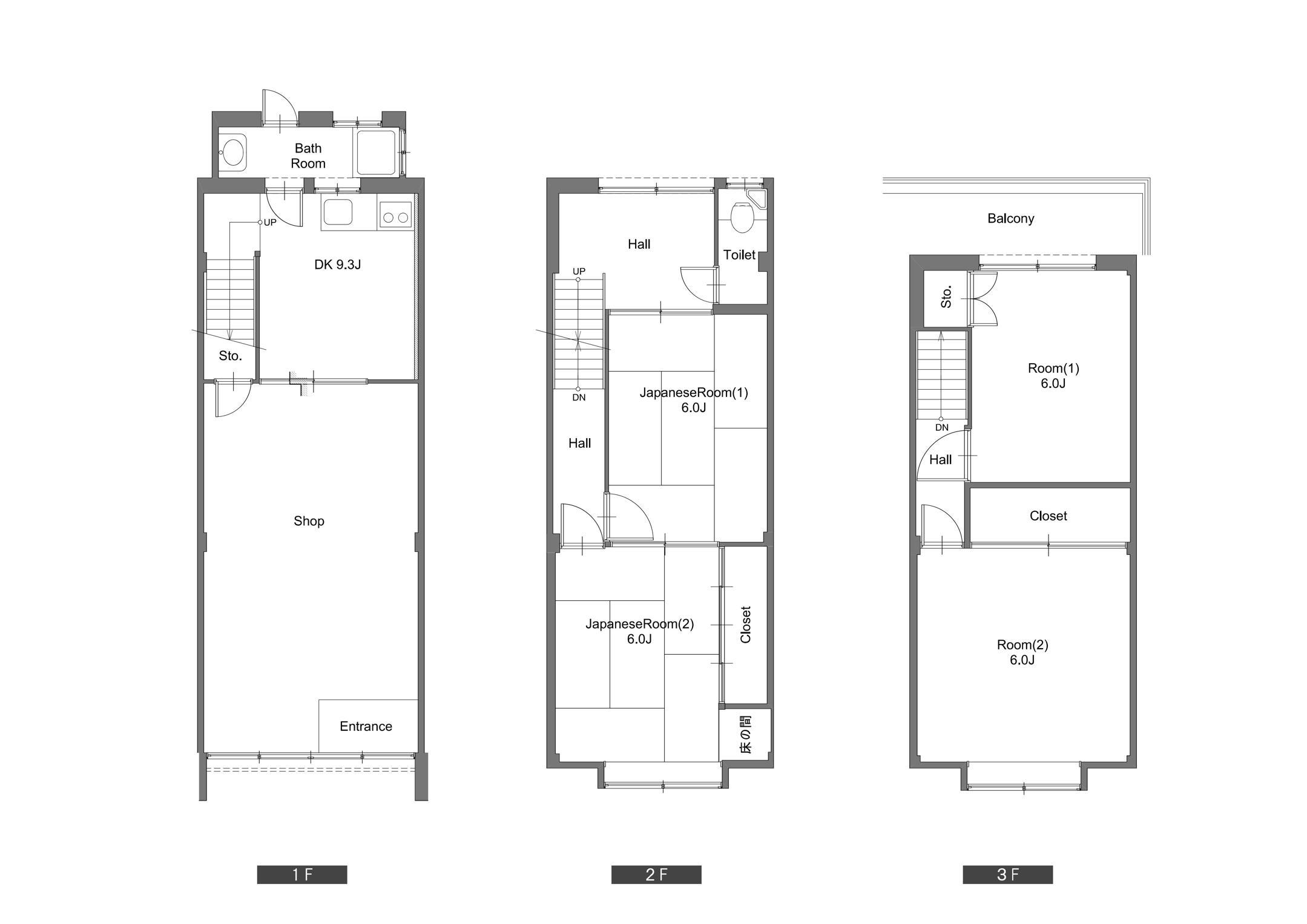
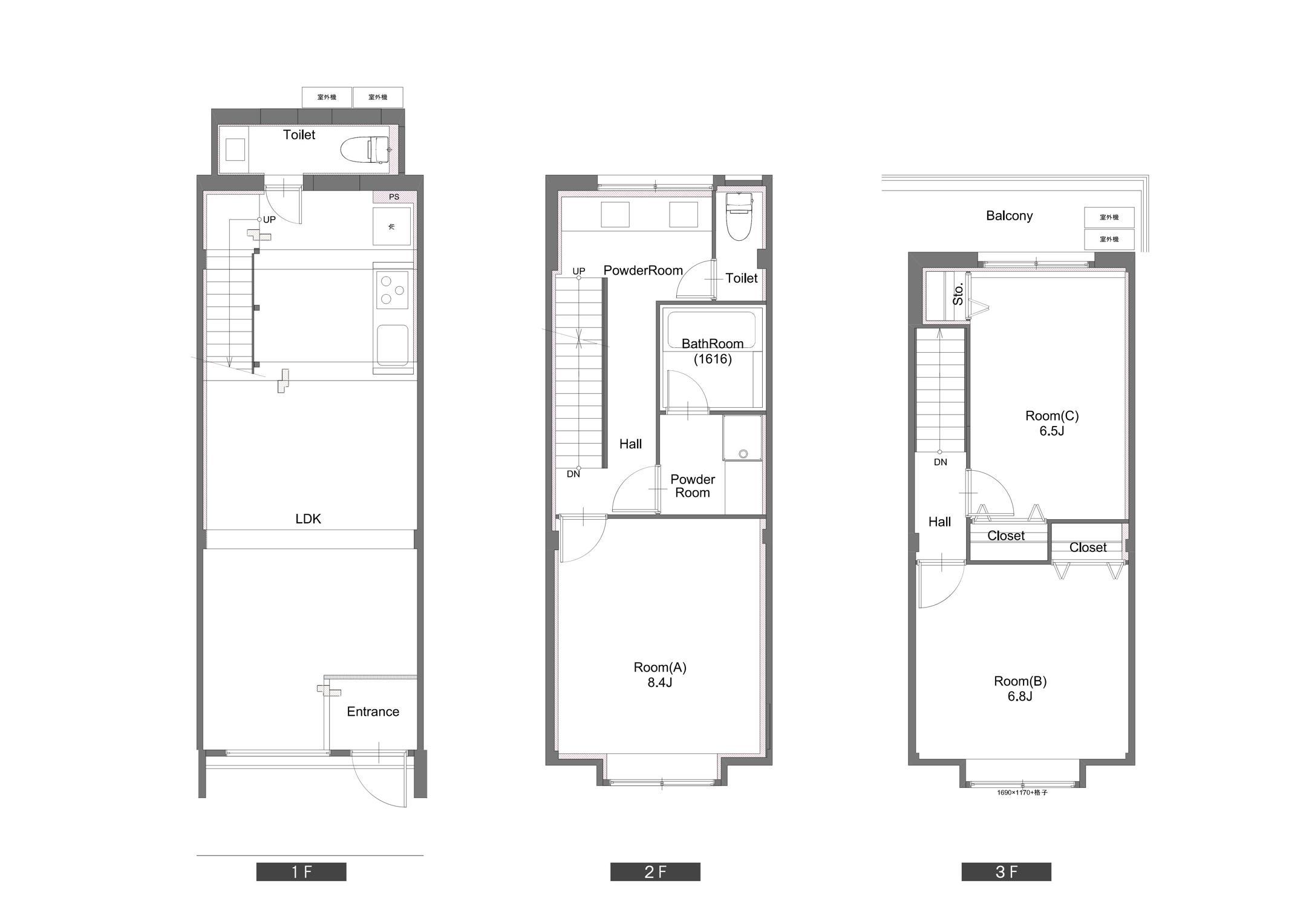
- 間取り
- 4DK→3LDK
- 家族構成
- その他
- 築年数
- 43年
BEFORE

AFTER

リノベの背景
事務所件自宅として利用できる様にしたいというご要望から打ち合わせが開始。 最初の打ち合わせは落ち着いた仕様の内容でしたが、「どうせなら事務所でなくお店にしては?」の一言で、打ち合わせを重ねる事にどんどん遊びのある内容に変化(笑)。普通の階段では物足りず、完全当社オリジナルのオープン階段造作や、コンクリートブロックを積んでキッチンを置く等、店舗を意識したリノベーションをさせて頂き、お客様をお招きするのが楽しみになるお家が完成しました。
最新情報をお届けします!
お祝い金キャンページ実施中!























