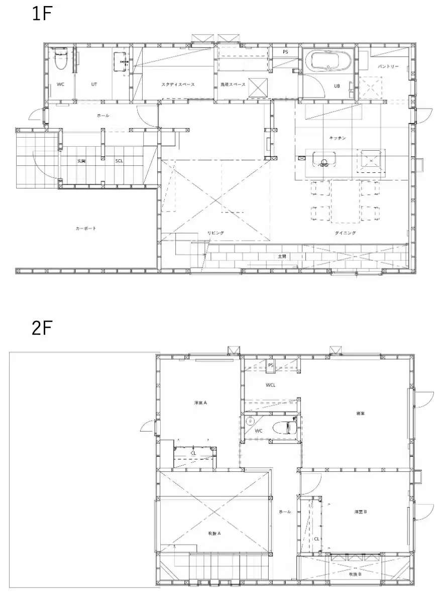
AFTERリノベ後










こだわりポイント
「白を基調とし、余白を残す。」ということを大事にしています。 内装はホワイトを基調色として無垢床のナラが優しく空間をまとめ上げ、家具の色合いや風合いが、ずっとそこに居たいと思わせる様な感じがします。 壁や棚上など、装飾などはせずに、お施主様の趣味やこだわりを表現できたり、またお花や植物を置いて、季節感を演出したり、さまざまな状況に応じて、色を出せるように意識しています。 パントリーと書斎を設けて、現代の暮らし方に間取りを合わせています。 共働きのご夫婦が増えた現代に欠かせないパントリーは、収納力が抜群。冷蔵庫も中に納めることができるため、リビングダイニングをすっきりと見せることができます。 また、キッチンからはパントリーとユーティリティーにすぐアクセスできるので、家事のしやすさもポイントになっています。 リモートワークに対応した機能的な書斎はリビング続きで、扉を開ければリビングの一画として、扉を閉めると独立性を高めることができるので、集中して作業を行うことができます。 お客さまからよくいただく言葉は「リノベとは思えない!」という驚きの言葉です。 リノベの可能性を最大限感じられる場にしています。
DATA
- リノベ箇所
- フルリノベーション
- 完成時期
- 2022年01月
- 延床面積
- 119.45平米
- 設計
- Lig works
- 施工面積
- 119.45平米
- 施工
- Lig works
- 間取り
- 4LDK以上→3LDK
- 家族構成
- 家族(子供2人)
- 築年数
- 39年
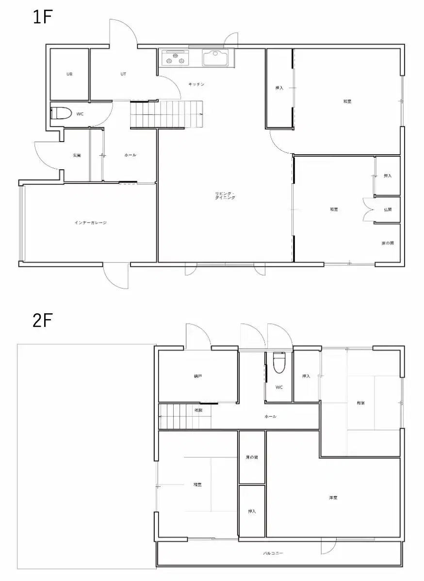
BEFORE

AFTER

リノベの背景
築36年の住宅は和室に客間があり、おじいちゃんとお孫さんが一緒に暮らすことのできる、その時代の建築様式を表す作りでした。 もとは5LDKの間取りでしたが、現代の暮らしに合わせて増減築を行い間取りは3LDK+吹き抜けといたしました。 また共働きのご夫婦を想定し、家事動線や在宅勤務などにも配慮しています。 モデルハウスでお施主様がいないため、メンバー全員で意見を出し合って作ったので、なかなか意見がまとまらず、苦労しました。その分、完成度の高い物件になっています。
最新情報をお届けします!
お祝い金キャンページ実施中!




















