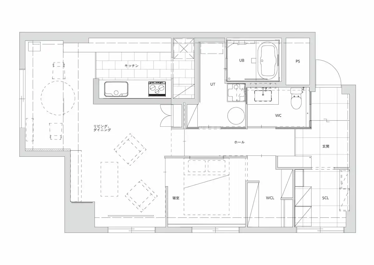
AFTERリノベ後







こだわりポイント
将来歩けなくなる難病を抱える奥様に配慮し、将来を見据えプランニングを行った思いのこもった物件です。 床はナラの無垢材、壁天井は塗装、モールテックス、タイル、タモとシナの造作収納など、天然素材にこだわっています。シンプルに素材の良さを賞玩することができます。 3LDKから1LDKへ間取りを変更し、大型玄関収納を設け、収納から玄関まで日の光が入るようになりました。 極力バリアフリーにしたいとのご要望があり、通路幅や間口の大きさ、ベッドからの動線を強く意識して作成し、使いやすさやデザインも考慮しました。玄関には靴の履き替えが楽にできるように腰掛けのベンチを造作していますが、デザイン性を保ちつつ、使いやすさを損なわないように工夫して作っています。 熟慮に熟慮を重ねたリノベ物件です。
DATA
- リノベ箇所
- フルリノベーション
- 完成時期
- 2021年08月
- 延床面積
- 72.65平米
- 設計
- Lig works
- 施工面積
- 71平米
- 施工
- Lig works
- 間取り
- 3LDK→1LDK
- 家族構成
- 夫婦、カップル(子供なし)
- 築年数
- 40年
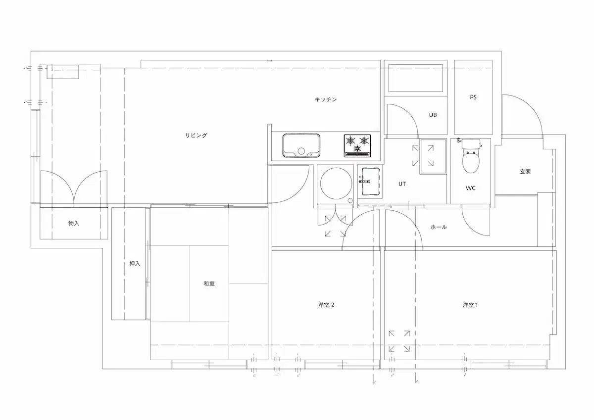
BEFORE

AFTER

リノベの背景
中古物件の購入からリノベーションを行いたいとのご相談で、奥様の通院先の病院に近く、電車で通勤を行っているご主人が不便にならない様にとの事でした。 中古物件を何点かご紹介したところ、その中にお施主様ご本人も気になっている物件があり、早速内覧のアポを取り見学に行きました。 事前に新居に対するイメージを伺っていましたので、どの様にリノベーションを行う事ができるのかを確認しながらご案内させていただきました。 ご案内の中でご夫婦の理想は叶えられることを確認し購入を決断。その後販売価格を売主様とご相談させていただき無事に購入に至りました。 リノベーションの内容については、将来歩けなくなるかもしれないという状況もあり、極力バリアフリーで、通路の広さ、ベッドからの動線などを強く意識してプランニングしました。 毎日夢の中でプランを書いてしまうほど悩み、過去最多の約20回にも及ぶ打ち合わせの末、ご提案を行いました。 お施主様は初めてプランを見たときに涙が溢れそうで、まともに話すことができないほど感動していただき、こちらもそれを見て、とてつもないやりがいを感じました。出会えたことが奇跡のようなお施主様でした。 それくらい思い入れの大きいリノベ物件です。
最新情報をお届けします!
お祝い金キャンページ実施中!

















