AFTERリノベ後










こだわりポイント
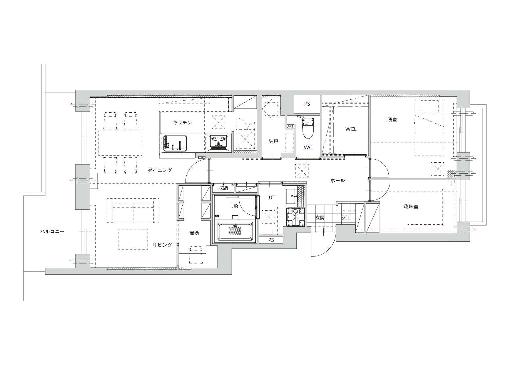
ひとり暮らしに豊かさをもたらすプラン。 「まっすぐ。ぴったり。」と「色素が薄い系の色味」をテーマに、シンプルですっきりとした空間にまとめました。 「まっすぐ。ぴったり。」を叶えるために、細部まで高さや位置の調整をしたり、タイルやウッドパネルがちょうど納まるように割付を綿密に考えました。 ウォークインクローゼットは、フロアタイルを使用していますが、廊下から見たときにフロアタイルが見えないように納めることで、廊下のフローリングがまっすぐ伸びているように見せています。 またトイレは、収納をできるだけ隠すよう、回り込むように奥に収納スペースを作るなど、様々な工夫を凝らしました。 「色素が薄い系の色味」については、薄い色の建材や設備機器などを選びました。そして、木材の塗装の色味を合わせたいというお施主さまの強い要望があったので、現場で何度も塗装をして調整をしました。 シンプルにまとめると無機質でかっこよくなりがちですが、あたたかみを残したやわらかい雰囲気にまとまったお家になったと思います。
DATA
- リノベ箇所
- フルリノベーション
- 完成時期
- 2023年09月
- 延床面積
- 66.68平米
- 設計
- Lig works
- 施工面積
- 66.68平米
- 施工
- Lig works
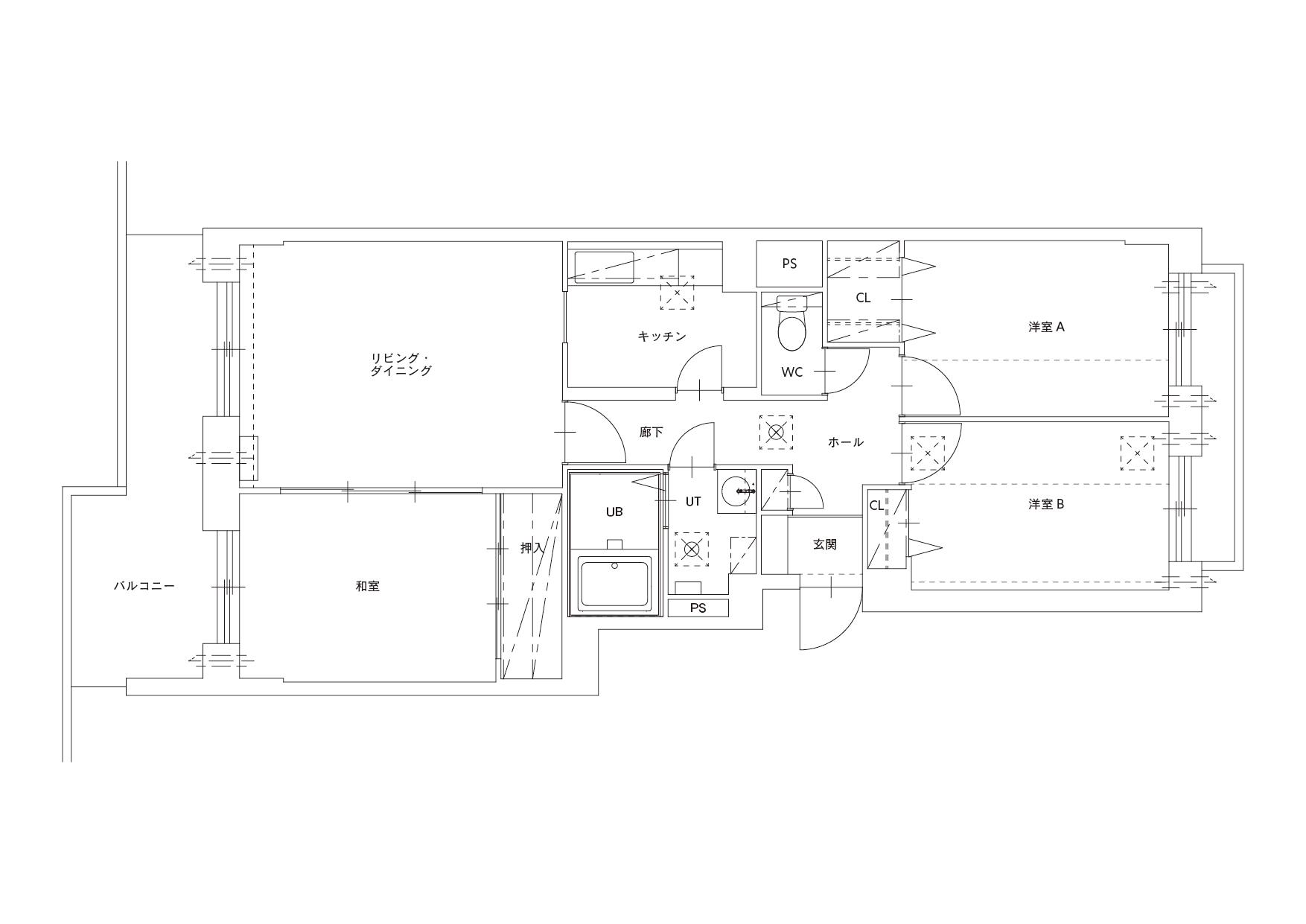
- 間取り
- 3LDK→2LDK
- 家族構成
- 単身
- 築年数
- 31年
BEFORE

AFTER

リノベの背景
お一人暮らしで、理想の住宅象をしっかりとお持ちのお施主さまでした。 ニッチのタイルや照明、スイッチ、シューズクローゼットの物干し、カップボード、書斎のガラスなど、使いたいものが決まっていたので、一部はお施主さまに支給していただく形で、それと合う空間に仕上げています。 好きな雰囲気の中で、気に入ったものに囲まれて過ごすことができます。 物干しは、他部署である札幌アポロの住設部に協力してもらい、オリジナルで作ったものです。 また本や趣味のものなどをたくさんお持ちなので、それを収納できるスペースを十分に作りました。
最新情報をお届けします!
お祝い金キャンページ実施中!




















