



こだわりポイント
『家は気分』と話すお施主さま。そんな想いをヒアリングでお聞きして、テーマは『LIKE A HOTEL』に。空間のデコレーションは避け、その先にあるデザインアイテムたちを活かすために考えた間取り。仕事をして、読書をして、スポーツ観戦をする。好きなものに包まれて非日常な生活を過ごすための上質な空間に仕上げました。
DATA
- リノベ箇所
- フルリノベーション
- 完成時期
- 2023年12月
- 延床面積
- 61.11平米
- 設計
- 株式会社ひかり工務店
- 施工面積
- 61.11平米
- 施工
- 株式会社ひかり工務店
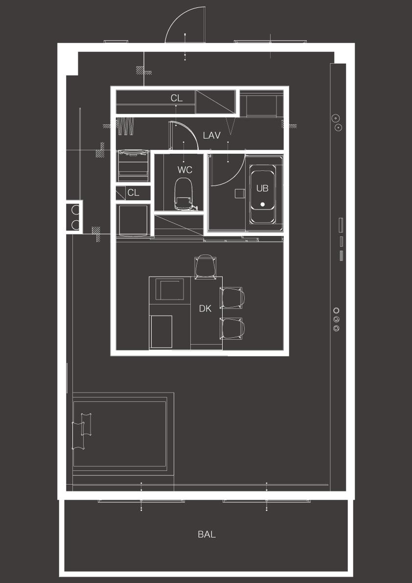
- 間取り
- 3LDK→1LDK
- 家族構成
- 単身
- 築年数
- 不明
BEFORE

AFTER

リノベの背景
分譲マンションの一部屋をフルリノベーション。これから住む家を考えた時に、今の時代マンションリノベーションでも自分の好きな間取りや暮らしが最大限に叶えられるのではないかと思い、リノベーションを決めましたと話すお施主様。もともとの間取りからは大幅に変更した、他にはない一室に。
最新情報をお届けします!
お祝い金キャンページ実施中!





























