AFTERリノベ後









BEFOREリノベ前
こだわりポイント
素材そのものの質感を活かした仕上げに── お庭のあるマンションという特性を活かし、風が抜けるルートを計算しながら設計。 ウッドの温もりをベースに、本当に「欲しい」と思えるものを少しずつ集めて完成した、 心地よく穏やかな空間です。
DATA
- リノベ箇所
- フルリノベーション
- 完成時期
- 2024年08月
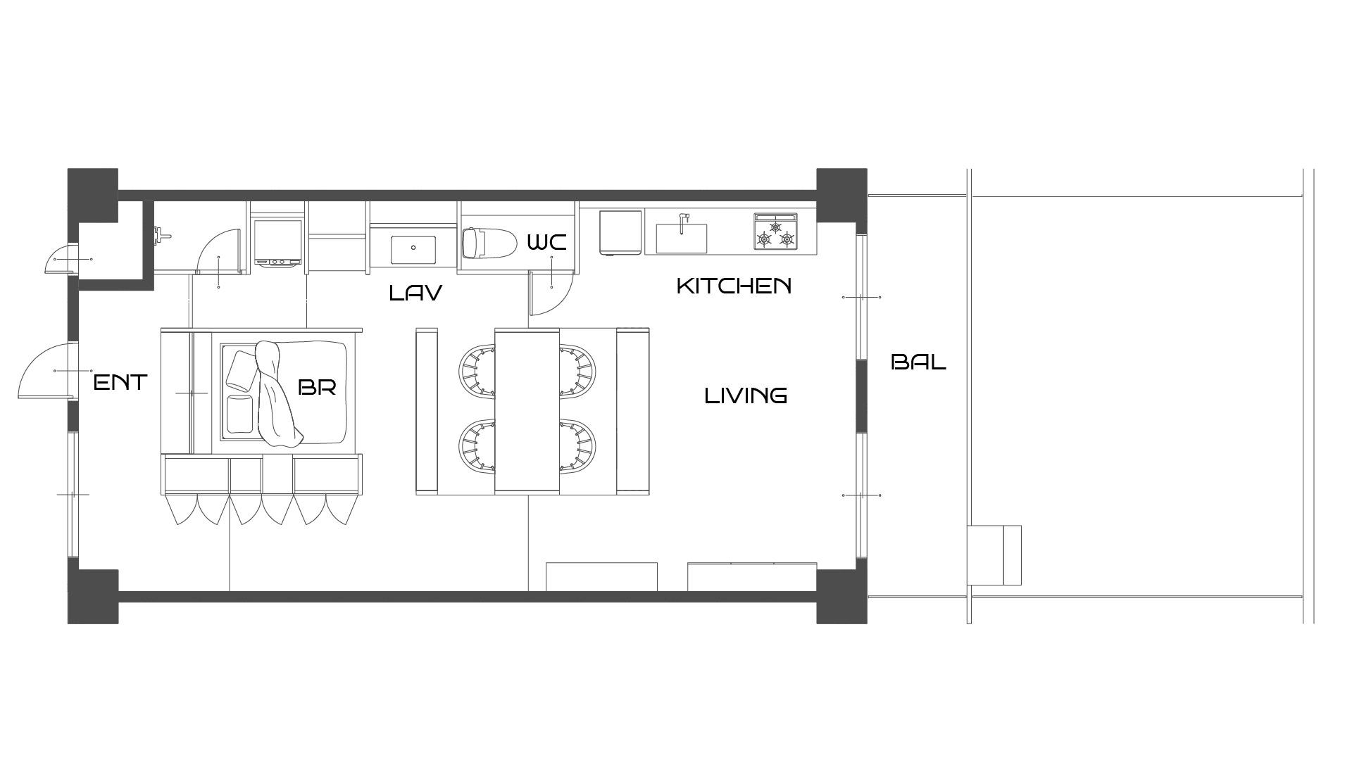
- 延床面積
- 61.6平米
- 設計
- 株式会社ひかり工務店
- 施工面積
- 61.6平米
- 施工
- 株式会社ひかり工務店
- 間取り
- 1LDK
- 家族構成
- 夫婦、カップル(子供なし)
- 築年数
- 不明
BEFORE

AFTER

リノベの背景
仕事も趣味も忙しい日々の中で、“自分たちらしい暮らし”を形にしたいと始まったリノベーション。 パズルのピースをひとつずつはめるように、空間を少しずつ整えていく過程を楽しみました。 時間とともに味わいを増す素材、風と光が通り抜ける開放的な間取り。 日常の中に、穏やかに心を整える「余白」が生まれました。
最新情報をお届けします!
お祝い金キャンページ実施中!
































