






こだわりポイント
広く、明るく、開放的なマンションに。 「自分たちの暮らしに合った快適な住まいにしたい」というお客様の想いを叶えるため、大幅な間取り変更を行った、マンションリノベーションの事例です。 弊社の設計士 原田に間取りやデザインを一任いただいた今回のリノベーション。3人のお子さんを育てる専業主婦の奥様の負担を少しでも軽くするため、さまざまな提案を行いました。 キッチンの回遊動線を確保することで、家事にかかる移動距離を短縮。ガス乾燥機の設置と室内干しスペースをご提案し、洗濯にかかる時間と手間を減らせるように設計。また、間取りの変更に伴って収納を拡張し、まとめ買いをしても困らない収納スペースの量と広さを確保しました。 しかし、家事や育児の効率だけを求めていては、ご夫婦にとって最高の住まいだとは言えません。そのため、リラックスできる空間にもこだわって設計を進めました。 お酒が好きというお二人にあわせて、夜はゆっくり晩酌ができるよう、キッチンの傍にカウンターを設け、ホームバーのような場所をつくっています。照明は明るすぎず落ちついたものを選定。ご希望にあった真鍮照明を印象的に取り入れ、長く愛せる空間になるように。空間を彩る壁や床にはオークの無垢材やラワン材を使い、住まいの雰囲気を素朴で上品なもので統一し、「飽きがこず、でも落ち着いて暮らせる」そんな空間へと。 開放的かつ機能的な住まいを実現しました。
DATA
- リノベ箇所
- LDK全体
- 完成時期
- 2023年12月
- 延床面積
- 78.12平米
- 設計
- ひかり工務店
- 施工面積
- 78.12平米
- 施工
- ひかり工務店
- 間取り
- 4LDK以上→4LDK以上
- 家族構成
- 家族(子供3人以上)
- 築年数
- 10年
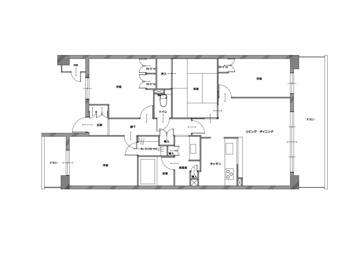
BEFORE

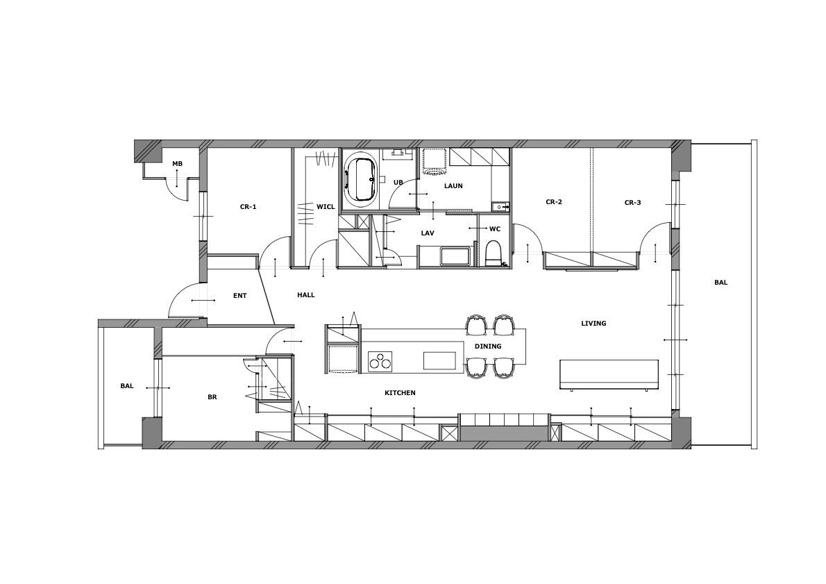
AFTER

リノベの背景
一般的にマンションをリノベーションする際は、外郭や排水の場所、天井の高さ、換気の経路などを変更するのが難しく、実現可能なレイアウトは限られています。 しかし、ひかり工務店のリノベーションでは、徹底した現場調査を行い、綿密に設計を進めていくことで既存の間取りから大きく変更させることが可能です。 今回の事例では、お客様のご要望にあわせLDKの向きから水回り、個室の配置なども一新しました。私たちひかり工務店が行うマンションリノベーションでは、一見実現不可能にも見えることも実現できるようご提案。新築戸建てのような自由な暮らし方をリノベーションで叶えられます。
最新情報をお届けします!
お祝い金キャンページ実施中!
































