AFTERリノベ後







こだわりポイント
元々はご主人のご両親が暮らしていた愛着のある住まいだったため、建材や家具など活かせるものはリメイクして活用。 「好きだった家の歴史を残してくださって、完成した部屋を見たときは感激して泣いてしまった」とのこと。 素敵にリノベーションされた住まいは掃除するのも楽しいそうで、まるでモデルルームのようにキレイに整えられている。 「家で過ごす時間が快適で、心が豊かになりました。 誰の家に行っても、どんなおしゃれな店を見ても、我が家が一番カッコイイ!って思うんですよ」と誇らしげに微笑む奥様。 来客が絶えないというOさん宅は、訪れる誰もが心地よくくつろげる空間になっている。
DATA
- リノベ箇所
- リビング/キッチン/寝室/和室/フルリノベーション
- 完成時期
- 2019年12月
- 延床面積
- 99.02平米
- 設計
- 株式会社スクエア
- 施工面積
- 99.02平米
- 施工
- 株式会社スクエア
- 間取り
- 2LDK→1LDK
- 家族構成
- 家族(子供2人)
- 築年数
- 60年
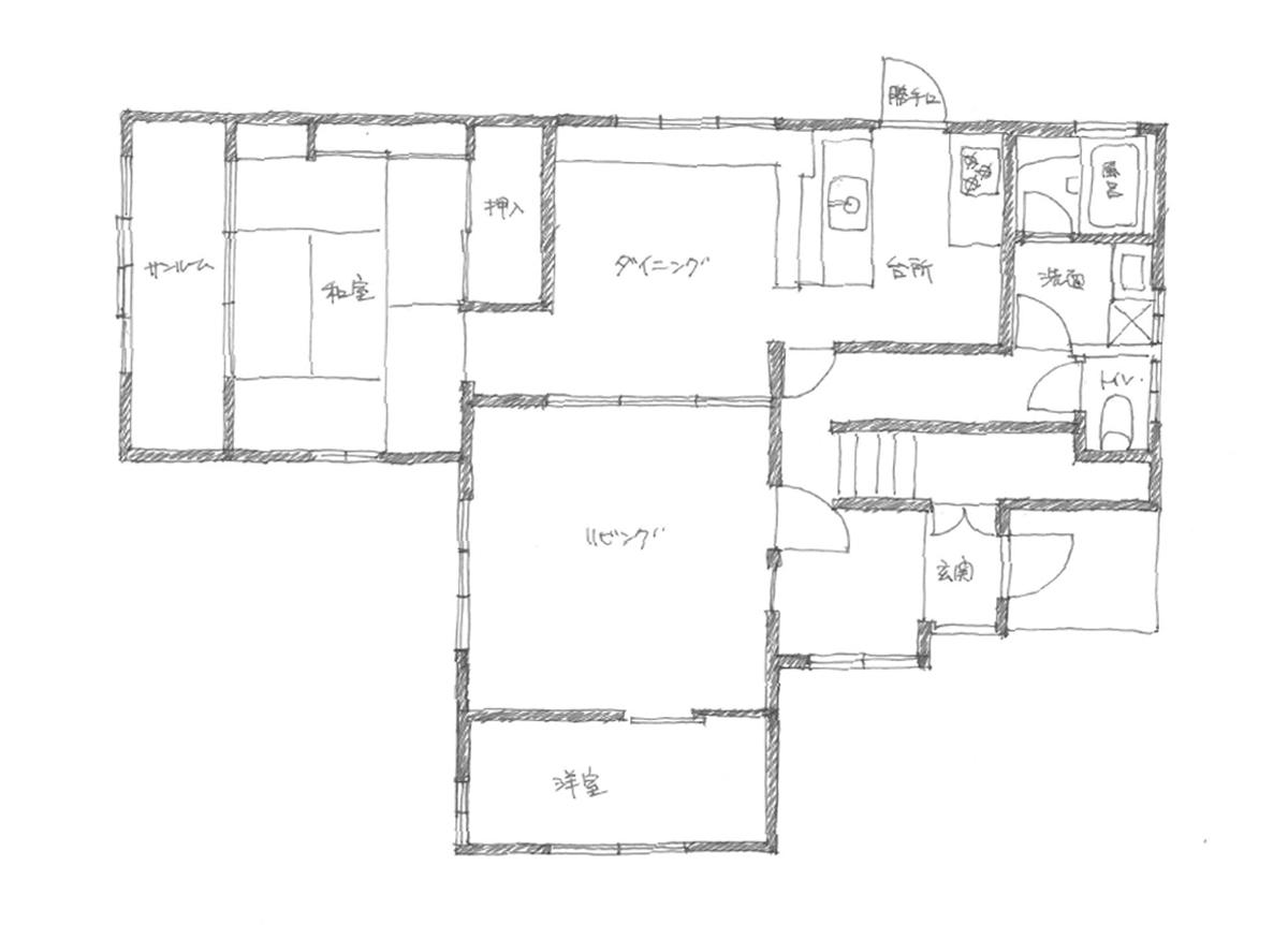
BEFORE

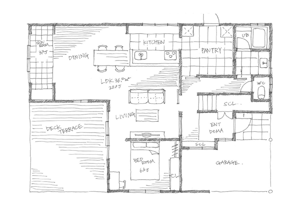
AFTER

リノベの背景
築60年になるご自宅1階をリノベーションしました。 「SQUAREのショールームに住みたいくらい大好きなテイストなので、安心してお任せできました」と奥様。 「漠然としたイメージを伝えただけで、私たちの想いをわかってくださるのがSQUAREのすごいところ。 スタッフ皆さんのアイデアで、住みやすくなる工夫がどんどんプラスされて、とにかく提案力が素晴らしい!」と、恐縮するほど大絶賛。 キッチンに立つと庭の緑が見える間取りも気に入っているそう。 「実は最初のプランでは、庭に面して個室を造り寝室にする予定だったんです。 でも『キッチンから庭が見えた方がいいんじゃない?』とSQUAREの林さんが、着工後にプラン変更してくださったんです」。 そのおかげで、光を遮る壁がない明るく開放的なLDKが誕生した。
最新情報をお届けします!
お祝い金キャンページ実施中!



























