AFTERリノベ後












こだわりポイント
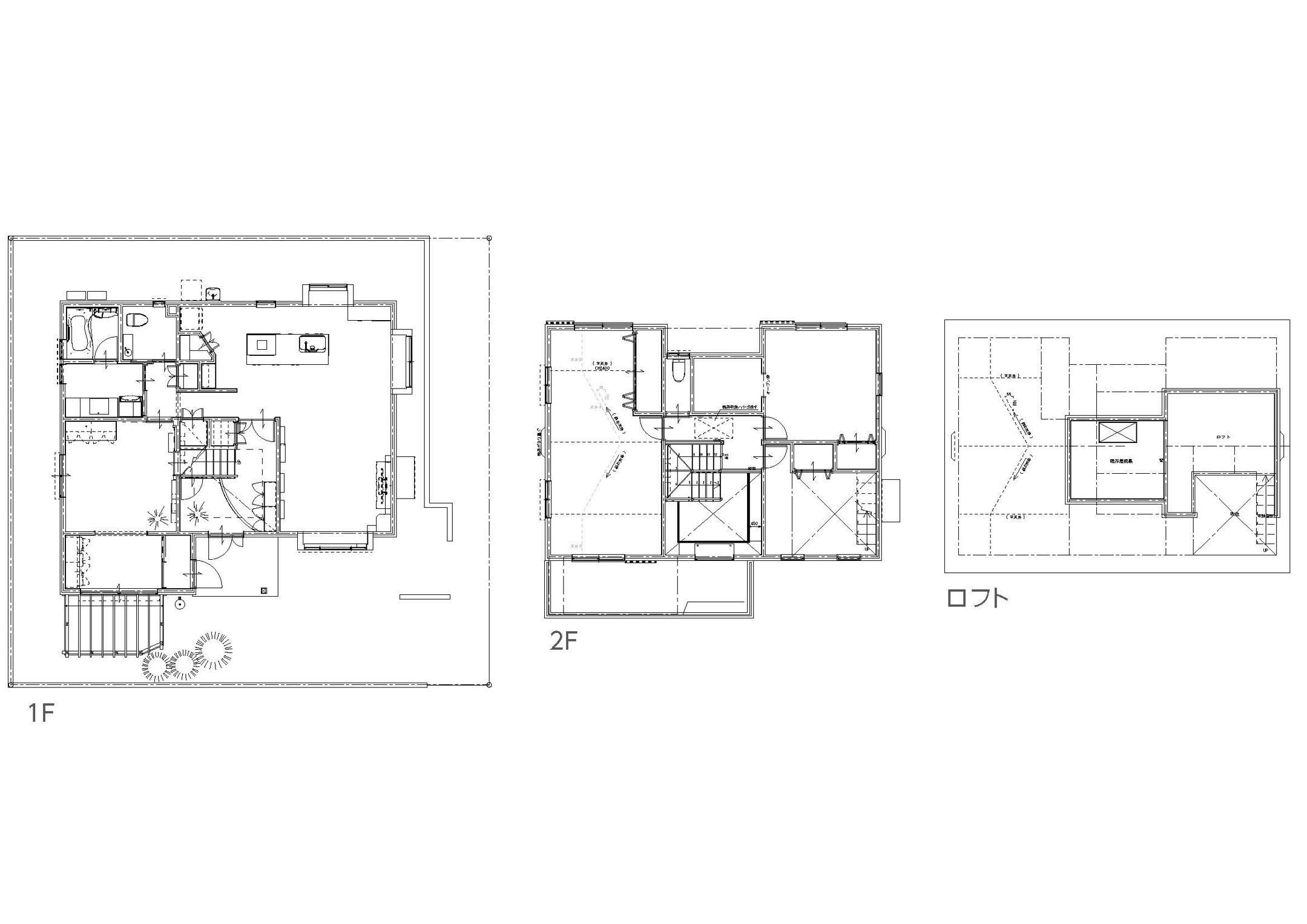
一緒に暮らす1頭のワンちゃんと6頭のネコちゃんが、いつも健やかでいられるように‥‥。 そんなご夫婦の想いに応えるアイデアが、改修後のこちらの住まいにはたっぷりと詰まっています。 リビングでくつろぐペットたちの様子がいつも視界に入るよう、壁付きだったキッチン設備は対面式に変更。玄関土間とつながる階段下のスペースは、ワンちゃんのベッドルームになりました。また玄関の吹き抜け部やリビングなど、住まいのさまざまな場所にキャットウォークを設置。さらに建物とフラットに続くよう増設したサンルームは、猫ちゃんたちが日向ぼっこを楽しめる〝キャティオ〟としても機能します。 もちろん間取りや装いの改修だけでなく、〝住宅性能の向上〟を目的とした施工もしっかりと計画・実施。すべての窓を入れ替えるなどして、気密・断熱性を高めました。ワンちゃんやネコちゃんたちだけでなく、ご夫婦お二人も心地よく暮らしていける住まいに仕上がっています。
DATA
- リノベ箇所
- フルリノベーション
- 完成時期
- 2021年03月
- 延床面積
- 160平米
- 設計
- 株式会社 an cube
- 施工面積
- 160平米
- 施工
- 株式会社 an cube
- 間取り
- 4LDK以上→4LDK以上
- 家族構成
- 夫婦、カップル(子供なし)
- 築年数
- 30年
BEFORE

AFTER

リノベの背景
新築から30年近く暮らしてきた住まい。お子様たちが独立されたことや、建物の老朽化を理由に、ご夫婦は今回のリノベーションを決められました。複数のハウスメーカー・工務店に相談されていた中で当社をパートナーに選んでいただけたのは、〝ペットに気持ち〟を考え抜いた改修プランが「期待以上だったから」とのことです。 2×4(ツーバイフォー)工法ゆえに間取り変更に制限があったこちらの住まいですが、それでもキッチンの配置替えをしたり、2階の個室にロフト空間をつくったりと、ご夫婦の〝これからの暮らし〟がより心地よくなるものへと生まれ変わっています。また装いは、明るめの木目を基調に白やグレーのクロスを合わせ、〝大人ナチュラル〟な印象に仕上げました。 お引き渡し後しばらくして、ご夫婦から「生活していてとても快適。感謝しています」とのお言葉を頂戴しました。ご満足いただけていることが、つくり手として本当にうれしく思います。
最新情報をお届けします!
お祝い金キャンページ実施中!
































































































